Сдам в аренду помещение свободного назначения 93.8 м.кв.

на карте
Просмотров 43
400 000 руб. / мес
Москва , Раменки, Василия Ланового улица, д.7с2
Тарасова Ольга
Показать телефон
Данные актуальны на 05.03.2026
Пожаловаться на объявление
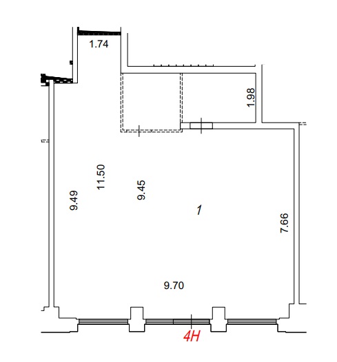
Помещение свободного назначения, расположенное на 1 этаже дома в составе ЖК премиум класса СОБЫТИЕ-5 с видом на дорогу и Событийную площадь. Площадь 93,8 кв.м. Панорамное остекление. Отдельный вход. Возможность получения мед. лицензии ( отсутствует паркинг под помещением). Электрическая мощность 16,8 кВт. Высота потолка 5,4 кв.м. Без отделки. На время ремонта предоставляются арендные каникулы. Инженерные коммуникации: приточно-вытяжная общеобменная вентиляция и кондиционирование, смонтированы пожарная сигнализация, дымоудаление. В шаговой доступности от станции метро Аминьевская и Мичуринский проспект. Рядом с помещением будет располагаться Событийная площадь - место притяжения жителей района. Коммерческие условия: Арендная плата : 400 000 руб. в месяц, коммунальные и эксплуатационные услуги оплачиваются дополнительно. Предоставляются арендные каникулы. Возможность размещения вывески на фасаде, круглосуточный доступ.

Дополнительная информация

Тип здания Отдельное здание Этаж 1 Этажность 32 Количество комнат - Вход Отдельный Ремонт Без ремонта
Интернет - Кондиционер Есть Вентиляция Есть Пожарная сигнализация Есть Красная линия -
Объекты, находящиеся поблизости
Медучреждения
36,6 391м
Prime System Clinic 523м
36,6 782м
Динамика изменения цен на рынке недвижимости ?

По району Раменки, в категории Универсальные помещения
За последние полгода средняя сумма аренды за кв.м. выросла на 127 руб. Колебание цен происходило от 3798 руб. до 3932 руб. На текущий момент наблюдается тенденция к уменьшению цены.
По городу Москва, в категории Универсальные помещения
За последние полгода средняя сумма аренды за кв.м. уменьшилась на 32 руб. Колебание цен происходило от 3036 руб. до 3073 руб. На текущий момент наблюдается тенденция к росту цены.
Похожие объявления
Обновлено
19.04.2026
Фотографии
15
Объявление 737293
Москва, Центральный АО, Тверской, Золоторожский Вал улица, д.11стр22
130 760
руб. / мес Аренда
76.9 м2
Обновлено
19.04.2026
Фотографии
15
Объявление 737294
Москва, Центральный АО, Тверской, Золоторожский Вал улица, д.11стр22
131 141
руб. / мес Аренда
77.1 м2
Обновлено
18.04.2026
Фотографии
6
Объявление 737192
Москва, Восточный АО, Косино-Ухтомский, Салтыковская улица, д.8стр5
87 400
руб. / мес Аренда
92 м2
Обновлено
18.04.2026
Фотографии
4
Объявление 737194
Москва, Восточный АО, Косино-Ухтомский, Салтыковская улица, д.8 стр 39
105 000
руб. / мес Аренда
84 м2
Обновлено
06.04.2026
Фотографии
12
Объявление 736747
Москва, Центральный АО, Басманный, Малая Почтовая улица, д.12
209 825
руб. / мес Аренда
76.3 м2
Обновлено
02.04.2026
Фотографии
10
Объявление 736578
Москва, Северо-Западный АО, Хорошево-Мневники, Нижние Мнёвники улица, д.12
600 000
руб. / мес Аренда
100.3 м2
Обновлено
27.03.2026
Фотографии
15
Объявление 736344
Москва, Центральный АО, Тверской, Золоторожский Вал улица, д.11стр22
130 760
руб. / мес Аренда
76.9 м2
Обновлено
27.03.2026
Фотографии
2
Объявление 728185
Москва, Восточный АО, Соколиная гора, Большая Семёновская улица, д.10стр10
190 000
руб. / мес Аренда
91.6 м2
Обновлено
02.03.2026
Фотографии
9
Объявление 721555
Москва, Юго-Восточный АО, Южнопортовый, Новоостаповская улица, д.16к1
410 780
руб. / мес Аренда
89.3 м2
Обновлено
02.03.2026
Фотографии
13
Объявление 703501
Москва, Центральный АО, Басманный, Малая Почтовая улица, д.12
331 740
руб. / мес Аренда
87.3 м2
Вход в личный кабинет