Сдам в аренду помещение свободного назначения 100.3 м.кв.

на карте
Просмотров 35
600 000 руб. / мес
100.3 м2
Москва , Хорошево-Мневники, Нижние Мнёвники улица, д.12
Тарасова Ольга
Показать телефон
Данные актуальны на 02.04.2026
Пожаловаться на объявление
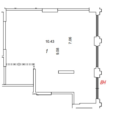
ЖК ОСТРОВ, 6 квартал. Видовое помещение формата СТРИТ РИТЕЙЛ, расположено на 1 этаже дома в составе ЖК Остров-6. Помещение расположено напротив районного Торгового центра. Дом входит в состав ЖК «ОСТРОВ» в окружении спортивного кластера: спортивный комплекс ЦСКА, легкоатлетический манеж, Ледовый дворец Т.Навки. Площадь – 100,3 кв.м, свободного назначения, правильной формы, без колонн. Отдельный вход. Электрическая мощность 20 кВт. Высота потолка 3,95 м. Без отделки. Предоставляются арендные каникулы. Инженерные коммуникации: приточно-вытяжная общеобменная вентиляция и кондиционирование, смонтированы пожарная сигнализация, дымоудаление. В шаговой доступности от станции метро Терехово. Коммерческие условия: Арендная плата 600 000,00 на первый год аренды. Коммунальные и эксплуатационные услуги оплачиваются дополнительно. Возможность размещения вывески на фасаде, круглосуточный доступ.

Дополнительная информация

Тип здания Отдельное здание Этаж 1 Этажность 22 Количество комнат - Вход Отдельный Ремонт Без ремонта
Интернет - Кондиционер Есть Вентиляция Есть Пожарная сигнализация Есть Красная линия -
Объекты, находящиеся поблизости
Медучреждения
36,6 325м
36,6 326м
Динамика изменения цен на рынке недвижимости ?

За последние полгода средняя сумма аренды за кв.м. уменьшилась на 105 руб. Колебание цен происходило от 5281 руб. до 5773 руб. На текущий момент наблюдается тенденция к росту цены.
По городу Москва, в категории Универсальные помещения
За последние полгода средняя сумма аренды за кв.м. уменьшилась на 42 руб. Колебание цен происходило от 3024 руб. до 3066 руб. На текущий момент наблюдается тенденция к уменьшению цены.
Похожие объявления
Обновлено
24.05.2026
Фотографии
9
Объявление 738748
Москва, Северный АО, Тимирязевский, Красностуденческий проезд, д.2Б
89 600
руб. / мес Аренда
89.6 м2
Обновлено
24.05.2026
Фотографии
9
Объявление 738749
Москва, Северный АО, Тимирязевский, Красностуденческий проезд, д.2Б
89 600
руб. / мес Аренда
89.6 м2
Обновлено
24.05.2026
Фотографии
7
Объявление 738750
Москва, Юго-Западный АО, Северное Бутово, Старокачаловская улица, д.1Д
109 200
руб. / мес Аренда
100.8 м2
Обновлено
24.05.2026
Фотографии
7
Объявление 738751
Москва, Юго-Западный АО, Северное Бутово, Старокачаловская улица, д.1Д
109 200
руб. / мес Аренда
100.8 м2
Обновлено
22.05.2026
Фотографии
15
Объявление 738676
Москва, Северо-Западный АО, Покровское-Стрешнево, Лётная улица, д.95б/2
480 000
руб. / мес Аренда
109 м2
Обновлено
14.05.2026
Фотографии
9
Объявление 738304
Москва, Южный АО, Чертаново Центральное, Чертановская улица, д.23А
101 250
руб. / мес Аренда
81 м2
Обновлено
14.05.2026
Фотографии
9
Объявление 738305
Москва, Южный АО, Чертаново Центральное, Чертановская улица, д.23А
101 250
руб. / мес Аренда
81 м2
Обновлено
12.05.2026
Фотографии
10
Объявление 738166
Москва, Юго-Восточный АО, Лефортово, Крузенштерна улица, д.3к1
320 000
руб. / мес Аренда
87.5 м2
Обновлено
08.05.2026
Фотографии
15
Объявление 738063
Москва, Центральный АО, Таганский, Рабочая улица, д.84стр5
376 425
руб. / мес Аренда
119.5 м2
Обновлено
06.05.2026
Фотографии
9
Объявление 737990
Москва, Юго-Восточный АО, Лефортово, Крузенштерна улица, д.3к2
500 000
руб. / мес Аренда
118.9 м2
Вход в личный кабинет