Сдам в аренду помещение свободного назначения 289.7 м.кв.

Объявление в архиве
1 200 000 руб. / мес
Москва , Басманный, Подсосенский переулок, д.23стр2
Татьяна, Елена
Контактные данные скрыты, так как объявление находится в архиве
Данные актуальны на 12.03.2026
Пожаловаться на объявление
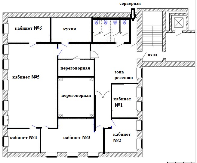
СОБСТВЕННИК предлагает в АРЕНДУ помещение общей площадью 289,7 м2. Помещение находится на территории Бизнес комплекса в 5 минутах ходьбы от м. Курская, Чкаловская на огороженной, охраняемой территории со своей столовой/кафе, типографией, кальянной, клиникой косметологии и другими достойными арендаторами. Помещение находится на 2-м этаже, по периметру всего помещения достаточное кол-во окон и высокие потолки 3 м, за счет этого помещение достаточно светлое и комфортное и при желании возможно сделать любую перепланировку. Планировка помещения на сегодняшний день: зона ресепшн, две переговорные, кухня (полностью оборудованная и со своим с/у), с/у, серверная, 6 кабинетов, возможно увеличение до 7. Установлена система кондиционирования воздуха, пожарная сигнализация. Предоставляется юридический адрес. Звоните, оперативно покажем и обсудим варианты сотрудничества.

Дополнительная информация

Тип здания Бизнес-центр Этаж 2 Этажность 4 Количество комнат - Вход Общий Ремонт С ремонтом
Интернет Есть Кондиционер Есть Вентиляция - Пожарная сигнализация - Красная линия -
Динамика изменения цен на рынке недвижимости ?

По району Басманный, в категории Универсальные помещения
За последние полгода средняя сумма аренды за кв.м. выросла на 125 руб. Колебание цен происходило от 2979 руб. до 3104 руб. На текущий момент наблюдается тенденция к росту цены.
По городу Москва, в категории Универсальные помещения
За последние полгода средняя сумма аренды за кв.м. уменьшилась на 39 руб. Колебание цен происходило от 3027 руб. до 3066 руб. На текущий момент наблюдается тенденция к уменьшению цены.
Похожие объявления
Обновлено
06.05.2026
Фотографии
7
Объявление 737986
Москва, Центральный АО, Замоскворечье, Садовническая набережная, д.79
908 687
руб. / мес Аренда
335 м2
Обновлено
28.04.2026
Фотографии
12
Объявление 737754
Москва, Северо-Восточный АО, Ростокино, Докукина улица, д.4
450 942
руб. / мес Аренда
295.7 м2
Обновлено
28.04.2026
Фотографии
12
Объявление 737755
Москва, Северо-Восточный АО, Ростокино, Докукина улица, д.4
450 942
руб. / мес Аренда
295.7 м2
Обновлено
14.04.2026
Фотографии
14
Объявление 732182
Москва, Юго-Восточный АО, Лефортово, Крузенштерна улица, д.4
850 000
руб. / мес Аренда
248.5 м2
Обновлено
14.04.2026
Фотографии
15
Объявление 737032
Москва, Центральный АО, Басманный, Подсосенский переулок, д.23стр2
1 200 000
руб. / мес Аренда
289.7 м2
Обновлено
14.04.2026
Фотографии
5
Объявление 737033
Москва, Центральный АО, Басманный, Подсосенский переулок, д.23стр5
500 000
руб. / мес Аренда
241 м2
Обновлено
14.04.2026
Фотографии
13
Объявление 737034
Москва, Центральный АО, Басманный, Подсосенский переулок, д.23стр2
1 499 980
руб. / мес Аренда
282.5 м2
Обновлено
14.04.2026
Фотографии
4
Объявление 737029
Москва, Центральный АО, Арбат, Романов переулок, д.3стр7
1 719 995
руб. / мес Аренда
273.5 м2
Обновлено
12.04.2026
Фотографии
5
Объявление 736969
Москва, Восточный АО, Соколиная гора, Большая Семёновская улица, д.11стр3
412 616
руб. / мес Аренда
317.3 м2
Обновлено
24.03.2026
Фотографии
13
Объявление 690717
Москва, Юго-Восточный АО, Нижегородский, Газгольдерная улица, д.10
663 525
руб. / мес Аренда
294.9 м2
Вход в личный кабинет