Сдам в аренду помещение свободного назначения 289.7 м.кв.

Просмотров 7
1 200 000 руб. / мес
Москва , Басманный, Подсосенский переулок, д.23стр2
Татьяна, Елена
Показать телефон
Данные актуальны на 14.04.2026
Пожаловаться на объявление
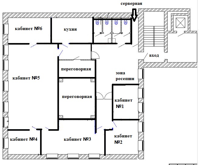
СОБСТВЕННИК предлагает в АРЕНДУ помещение общей площадью 289,7 м2. Помещение находится на территории Бизнес комплекса в 5 минутах ходьбы от м. Курская, Чкаловская на огороженной, охраняемой территории со своей столовой/кафе, типографией, кальянной, клиникой косметологии и другими достойными арендаторами. Помещение находится на 2-м этаже, по периметру всего помещения достаточное кол-во окон и высокие потолки 3 м, за счет этого помещение достаточно светлое и комфортное и при желании возможно сделать любую перепланировку. Планировка помещения на сегодняшний день: зона ресепшн, две переговорные, кухня (полностью оборудованная и со своим с/у), с/у, серверная, 6 кабинетов, возможно увеличение до 7. Установлена система кондиционирования воздуха, пожарная сигнализация. Предоставляется юридический адрес. Звоните, оперативно покажем и обсудим варианты сотрудничества.

Дополнительная информация

Тип здания Бизнес-центр Этаж 2 Этажность 4 Количество комнат - Вход Общий Ремонт С ремонтом
Интернет Есть Кондиционер Есть Вентиляция - Пожарная сигнализация - Красная линия -
Объекты, находящиеся поблизости
Банки, банкоматы
"Азиатско-Тихоокеанский Банк" (АО) 142м
Азиатско-Тихоокеанский Банк 145м
Таврический банк 267м
Инвестторгбанк 315м
НС Банк 341м
Столовые, кафе
Делофф 72м
Brasserie Lambic 73м
Трапезная 161м
Пересвет 176м
Kava 187м
Медучреждения
Dr. Эстетик 11м
Mendeleev 54м
Научно-исследовательская лечебная клиника хиропрактики и остеопатии 141м
МедЦентрСервис 183м
Многопрофильный клинико-диагностический центр Научного центра неврлогии 205м
Автосервис
Мосэнерго 791м
Динамика изменения цен на рынке недвижимости ?

По району Басманный, в категории Универсальные помещения
За последние полгода средняя сумма аренды за кв.м. выросла на 92 руб. Колебание цен происходило от 2979 руб. до 3087 руб. На текущий момент наблюдается тенденция к уменьшению цены.
По городу Москва, в категории Универсальные помещения
За последние полгода средняя сумма аренды за кв.м. уменьшилась на 31 руб. Колебание цен происходило от 3036 руб. до 3073 руб. На текущий момент наблюдается тенденция к росту цены.
Похожие объявления
Обновлено
14.04.2026
Фотографии
14
Объявление 732182
Москва, Юго-Восточный АО, Лефортово, Крузенштерна улица, д.4
850 000
руб. / мес Аренда
248.5 м2
Обновлено
14.04.2026
Фотографии
5
Объявление 737033
Москва, Центральный АО, Басманный, Подсосенский переулок, д.23стр5
500 000
руб. / мес Аренда
241 м2
Обновлено
14.04.2026
Фотографии
13
Объявление 737034
Москва, Центральный АО, Басманный, Подсосенский переулок, д.23стр2
1 499 980
руб. / мес Аренда
282.5 м2
Обновлено
14.04.2026
Фотографии
4
Объявление 737029
Москва, Центральный АО, Арбат, Романов переулок, д.3стр7
1 719 995
руб. / мес Аренда
273.5 м2
Обновлено
13.04.2026
Фотографии
13
Объявление 736982
Москва, Центральный АО, Басманный, Подсосенский переулок, д.23стр2
1 499 980
руб. / мес Аренда
282.5 м2
Обновлено
12.04.2026
Фотографии
5
Объявление 736969
Москва, Восточный АО, Соколиная гора, Большая Семёновская улица, д.11стр3
412 616
руб. / мес Аренда
317.3 м2
Обновлено
06.04.2026
Фотографии
5
Объявление 733882
Москва, Центральный АО, Басманный, Подсосенский переулок, д.23стр5
500 000
руб. / мес Аренда
241 м2
Обновлено
24.03.2026
Фотографии
13
Объявление 690717
Москва, Юго-Восточный АО, Нижегородский, Газгольдерная улица, д.10
663 525
руб. / мес Аренда
294.9 м2
Обновлено
16.03.2026
Фотографии
15
Объявление 735684
Москва, Северо-Восточный АО, Бабушкинский, Лётчика Бабушкина улица, д.17к1
325 658
руб. / мес Аренда
291.2 м2
Обновлено
16.03.2026
Фотографии
15
Объявление 735685
Москва, Северо-Восточный АО, Бабушкинский, Лётчика Бабушкина улица, д.17к1
325 658
руб. / мес Аренда
291.2 м2
Вход в личный кабинет