Сдам в аренду помещение свободного назначения 97.7 м.кв.

на карте
Объявление в архиве
229 993 руб. / мес
на 26% дешевле похожих объектов ?
Москва , Лефортово, Невельского проезд, д.1к1
Тарасова Ольга
Контактные данные скрыты, так как объявление находится в архиве
Данные актуальны на 30.05.2022
Пожаловаться на объявление
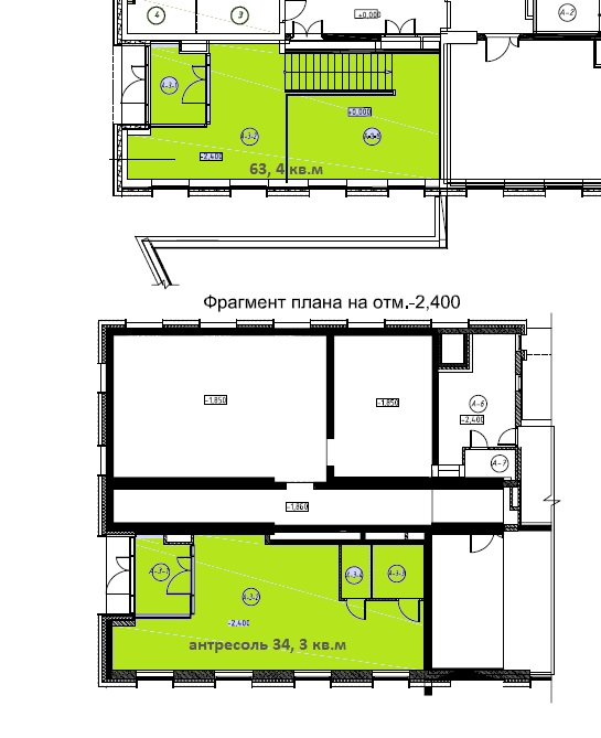
СТРИТ РИТЕЙЛ, 1 этаж жилого дома в составе ЖК «СИМВОЛ». Квартал «Смелость» Площадь - 97,7 кв. м (включая антресоль 34,3 кв. м) Электрическая мощность - 20,0 кВт. Панорамное остекление, 1 вход. Мимо дома будет проходить основная дорога - проезд Невельского (проходящая над парком «Зеленая река») Рекламное место на фасаде. Без ремонта. Каникулы на ремонт предоставляются. Инженерные коммуникации: приточно-вытяжная общеобменная вентиляция, смонтированы пожарная сигнализация, пожаротушение, дымоудаление. В шаговой доступности метро "Авиамоторная". Коммерческие условия Арендная плата - 230 000,00 рублей в месяц (ставка 28 250,00 руб за кв.м. в год, вкл. НДС) + эксплуатационные услуги + КУ по приборам учета. Долгосрочная аренда. Сдача дома - 4 квартал 2021

Дополнительная информация

Тип здания Отдельное здание Этаж 1 Этажность 28 Количество комнат - Вход Отдельный Ремонт Без ремонта
Интернет - Кондиционер Есть Вентиляция Есть Пожарная сигнализация Есть Красная линия -
Динамика изменения цен на рынке недвижимости ?

По району Лефортово, в категории Универсальные помещения
За последние полгода средняя сумма аренды за кв.м. выросла на 82 руб. Колебание цен происходило от 3053 руб. до 3149 руб. На текущий момент наблюдается тенденция к уменьшению цены.
По городу Москва, в категории Универсальные помещения
За последние полгода средняя сумма аренды за кв.м. уменьшилась на 42 руб. Колебание цен происходило от 3033 руб. до 3075 руб. На текущий момент наблюдается тенденция к уменьшению цены.
Похожие объявления
Обновлено
02.03.2026
Фотографии
17
Объявление 721533
Москва, Юго-Восточный АО, Южнопортовый, Новоостаповская улица, д.16к1
479 700
руб. / мес Аренда
117 м2
Обновлено
02.03.2026
Фотографии
18
Объявление 721555
Москва, Юго-Восточный АО, Южнопортовый, Новоостаповская улица, д.16к1
410 780
руб. / мес Аренда
89.3 м2
Обновлено
02.03.2026
Фотографии
18
Объявление 703501
Москва, Центральный АО, Басманный, Малая Почтовая улица, д.12
331 740
руб. / мес Аренда
87.3 м2
Обновлено
02.03.2026
Фотографии
20
Объявление 703503
Москва, Центральный АО, Басманный, Малая Почтовая улица, д.12
361 760
руб. / мес Аренда
95.2 м2
Обновлено
02.03.2026
Фотографии
19
Объявление 703467
Москва, Центральный АО, Басманный, Малая Почтовая улица, д.12
471 090
руб. / мес Аренда
114.9 м2
Обновлено
02.03.2026
Фотографии
31
Объявление 703478
Москва, Центральный АО, Басманный, Малая Почтовая улица, д.12
304 590
руб. / мес Аренда
92.3 м2
Обновлено
26.02.2026
Фотографии
10
Объявление 734871
Москва, Северо-Западный АО, Хорошево-Мневники, Нижние Мнёвники улица, д.16к6
500 000
руб. / мес Аренда
109.2 м2
Обновлено
26.02.2026
Фотографии
15
Объявление 734852
Москва, Центральный АО, Тверской, Пяловская улица, д.1
146 069
руб. / мес Аренда
105.6 м2
Обновлено
26.02.2026
Фотографии
15
Объявление 734575
Москва, Центральный АО, Тверской, Пяловская улица, д.1
205 426
руб. / мес Аренда
115.3 м2
Обновлено
26.02.2026
Фотографии
15
Объявление 734579
Москва, Центральный АО, Тверской, Пяловская улица, д.1
165 390
руб. / мес Аренда
92.8 м2
Вход в личный кабинет