Сдам в аренду помещение свободного назначения 109.2 м.кв.

на карте
Просмотров 30
500 000 руб. / мес
на 14% дешевле похожих объектов ?
Москва , Хорошево-Мневники, Нижние Мнёвники улица, д.16к6
Тарасова Ольга
Показать телефон
Данные актуальны на 26.02.2026
Пожаловаться на объявление
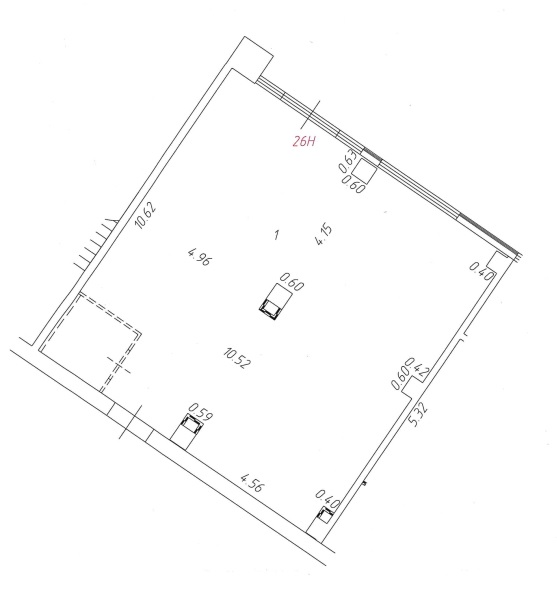
Видовое помещение свободного назначения, расположено во втором корпусе ЖК ОСТРОВ, квартал 2. Расположено вдоль центральной дороги - улица Нижние Мневники. Площадь – 109,2 кв.м. Отдельный вход. Витражное остекление. Состояние помещения - под чистовую отделку. Электрическая мощность 21,38 кВт. Высота потолка 5,73 м. На время ремонта предоставляются арендные каникулы. Инженерные коммуникации: приточно-вытяжная общеобменная вентиляция и кондиционирование, смонтированы пожарная сигнализация, дымоудаление. В шаговой доступности от станции метро Терехово. Коммерческие условия: Арендная плата – 500 000 руб в месяц. Коммунальные и эксплуатационные услуги оплачиваются дополнительно. Возможность размещения вывески на фасаде, круглосуточный доступ.

Дополнительная информация

Тип здания Отдельное здание Этаж 1 Этажность 23 Количество комнат - Вход Отдельный Ремонт Без ремонта
Интернет - Кондиционер Есть Вентиляция Есть Пожарная сигнализация Есть Красная линия -
Объекты, находящиеся поблизости
Медучреждения
36,6 230м
36,6 231м
Динамика изменения цен на рынке недвижимости ?

За последние полгода средняя сумма аренды за кв.м. уменьшилась на 28 руб. Колебание цен происходило от 5269 руб. до 5773 руб. На текущий момент наблюдается тенденция к уменьшению цены.
По городу Москва, в категории Универсальные помещения
За последние полгода средняя сумма аренды за кв.м. уменьшилась на 32 руб. Колебание цен происходило от 3036 руб. до 3073 руб. На текущий момент наблюдается тенденция к росту цены.
Похожие объявления
Обновлено
18.04.2026
Фотографии
6
Объявление 737192
Москва, Восточный АО, Косино-Ухтомский, Салтыковская улица, д.8стр5
87 400
руб. / мес Аренда
92 м2
Обновлено
14.04.2026
Фотографии
15
Объявление 737062
Москва, Центральный АО, Тверской, Пяловская улица, д.1
153 800
руб. / мес Аренда
115.3 м2
Обновлено
06.04.2026
Фотографии
11
Объявление 736746
Москва, Центральный АО, Басманный, Малая Почтовая улица, д.12
333 575
руб. / мес Аренда
121.3 м2
Обновлено
02.04.2026
Фотографии
8
Объявление 736579
Москва, Северо-Западный АО, Хорошево-Мневники, Нижние Мнёвники улица, д.7
600 000
руб. / мес Аренда
123.9 м2
Обновлено
02.04.2026
Фотографии
10
Объявление 736578
Москва, Северо-Западный АО, Хорошево-Мневники, Нижние Мнёвники улица, д.12
600 000
руб. / мес Аренда
100.3 м2
Обновлено
27.03.2026
Фотографии
2
Объявление 728185
Москва, Восточный АО, Соколиная гора, Большая Семёновская улица, д.10стр10
190 000
руб. / мес Аренда
91.6 м2
Обновлено
24.03.2026
Фотографии
10
Объявление 735597
Москва, Юго-Восточный АО, Нижегородский, Газгольдерная улица, д.10
276 750
руб. / мес Аренда
123 м2
Обновлено
12.03.2026
Фотографии
15
Объявление 735630
Москва, Центральный АО, Тверской, Средняя Первомайская улица, д.4
242 000
руб. / мес Аренда
121.9 м2
Обновлено
06.03.2026
Фотографии
9
Объявление 735390
Москва, Юго-Восточный АО, Лефортово, Крузенштерна улица, д.3к1
350 000
руб. / мес Аренда
119.4 м2
Обновлено
06.03.2026
Фотографии
10
Объявление 735392
Москва, Юго-Восточный АО, Лефортово, Крузенштерна улица, д.3к4
600 000
руб. / мес Аренда
120.2 м2
Вход в личный кабинет