Сдам в аренду помещение свободного назначения 62.5 м.кв.

на карте
Просмотров 4
426 000 руб. / мес
Москва , Хорошево-Мневники, Нижние Мнёвники улица, д.12
Тарасова Ольга
Показать телефон
Данные актуальны на 24.04.2026
Пожаловаться на объявление
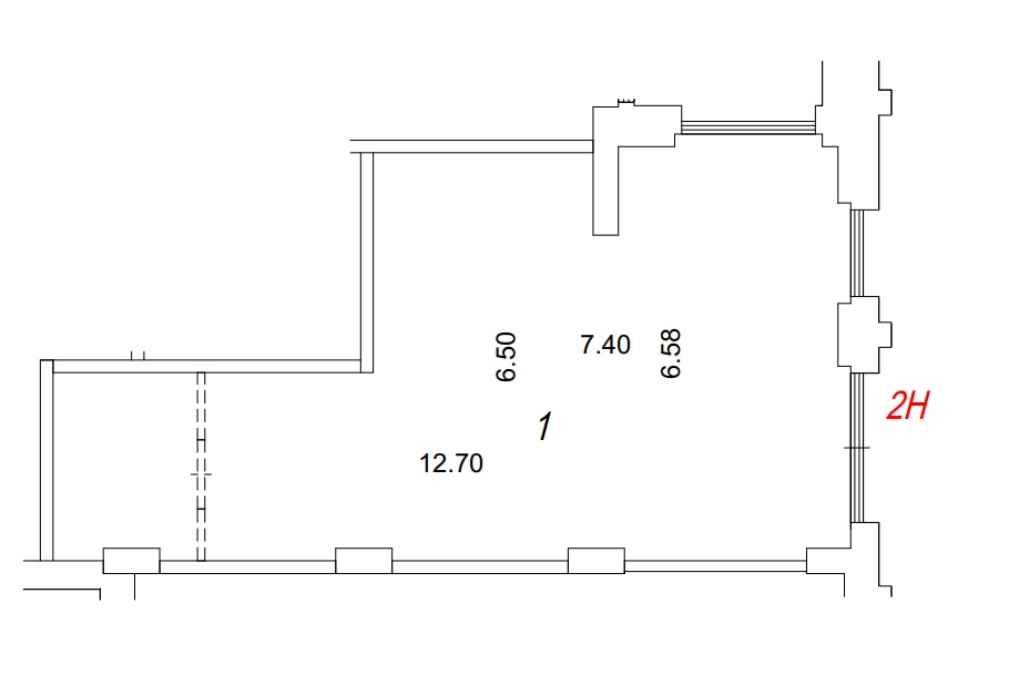
ЖК ОСТРОВ, 6 квартал. Видовое, угловое помещение свободного назначения, расположено на 1 этаже дома в составе ЖК Остров-6, корпус 1. Рядом расположены супермаркет, кафе и винотека. Дом входит в состав ЖК «ОСТРОВ» в окружении спортивного кластера: спортивный комплекс ЦСКА, легкоатлетический манеж, Ледовый дворец Т.Навки. Площадь – 62,5 кв.м. Отдельный вход, панорамные окна. Электрическая мощность 20 Вт. Высота потолка 6,95 м. Без отделки. Предоставляются арендные каникулы. Инженерные коммуникации: приточно-вытяжная общеобменная вентиляция и кондиционирование, смонтированы пожарная сигнализация, дымоудаление. В шаговой доступности от станции метро Терехово. Коммерческие условия: Арендная плата 426 000,00 на первый год аренды. Коммунальные и эксплуатационные услуги оплачиваются дополнительно. Возможность размещения вывески на фасаде, круглосуточный доступ.

Дополнительная информация

Тип здания Отдельное здание Этаж 1 Этажность 21 Количество комнат - Вход Отдельный Ремонт Без ремонта
Интернет - Кондиционер Есть Вентиляция Есть Пожарная сигнализация Есть Красная линия -
Объекты, находящиеся поблизости
Медучреждения
36,6 325м
36,6 326м
Динамика изменения цен на рынке недвижимости ?

За последние полгода средняя сумма аренды за кв.м. уменьшилась на 21 руб. Колебание цен происходило от 5276 руб. до 5773 руб. На текущий момент наблюдается тенденция к уменьшению цены.
По городу Москва, в категории Универсальные помещения
За последние полгода средняя сумма аренды за кв.м. уменьшилась на 34 руб. Колебание цен происходило от 3036 руб. до 3073 руб. На текущий момент наблюдается тенденция к росту цены.
Похожие объявления
Обновлено
23.04.2026
Фотографии
8
Объявление 737504
Москва, Юго-Восточный АО, Нижегородский, Газгольдерная улица, д.10
142 800
руб. / мес Аренда
51 м2
Обновлено
23.04.2026
Фотографии
15
Объявление 737539
Москва, Центральный АО, Тверской, Золоторожский Вал улица, д.11стр22
110 936
руб. / мес Аренда
65.3 м2
Обновлено
22.04.2026
Фотографии
8
Объявление 737500
Москва, Северо-Западный АО, Хорошево-Мневники, Нижние Мнёвники улица, д.12
450 000
руб. / мес Аренда
62.4 м2
Обновлено
19.04.2026
Фотографии
15
Объявление 737291
Москва, Центральный АО, Тверской, Золоторожский Вал улица, д.11стр22
95 441
руб. / мес Аренда
59.7 м2
Обновлено
19.04.2026
Фотографии
15
Объявление 737292
Москва, Центральный АО, Тверской, Золоторожский Вал улица, д.11стр22
98 311
руб. / мес Аренда
61.4 м2
Обновлено
15.04.2026
Фотографии
15
Объявление 725529
Москва, Северо-Западный АО, Хорошево-Мневники, Шеногина улица, д.2/11
657 300
руб. / мес Аренда
62.6 м2
Обновлено
14.04.2026
Фотографии
15
Объявление 737058
Москва, Северо-Западный АО, Хорошево-Мневники, Нижние Мнёвники улица, д.20
360 000
руб. / мес Аренда
58.6 м2
Обновлено
14.04.2026
Фотографии
15
Объявление 737048
Москва, 2-я Прядильная улица, д.4
120 000
руб. / мес Аренда
50 м2
Обновлено
08.04.2026
Фотографии
15
Объявление 736842
Москва, Василия Ощепкова улица, д.1
97 440
руб. / мес Аренда
69.6 м2
Обновлено
04.04.2026
Фотографии
15
Объявление 736645
Москва, Центральный АО, Тверской, Золоторожский Вал улица, д.11стр22
92 503
руб. / мес Аренда
61.7 м2
Вход в личный кабинет