Сдам в аренду помещение свободного назначения 55.9 м.кв.

на карте
Просмотров 49
300 000 руб. / мес
Москва , Хорошево-Мневники, Нижние Мнёвники улица, д.7
Тарасова Ольга
Показать телефон
Данные актуальны на 02.04.2026
Пожаловаться на объявление
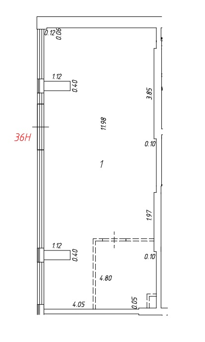
ЖК ОСТРОВ, 4 квартал. Помещение свободного назначения, расположено на 1 этаже дома в составе ЖК Остров-4, корпус 7. Дом входит в состав ЖК «ОСТРОВ» в окружении спортивного кластера: спортивный комплекс ЦСКА, легкоатлетический манеж, Ледовый дворец Т.Навки. Площадь – 55,9 кв.м. Отдельный вход, панорамные окна. Электрическая мощность 15 Вт. Высота потолка 6 м. Без отделки. Предоставляются арендные каникулы. Инженерные коммуникации: приточно-вытяжная общеобменная вентиляция и кондиционирование, смонтированы пожарная сигнализация, дымоудаление. В шаговой доступности от станции метро Терехово. Коммерческие условия: Арендная плата 300 000,00 на первый год аренды. Коммунальные и эксплуатационные услуги оплачиваются дополнительно. Возможность размещения вывески на фасаде, круглосуточный доступ.

Дополнительная информация

Тип здания Отдельное здание Этаж 1 Этажность 16 Количество комнат - Вход Отдельный Ремонт Без ремонта
Интернет - Кондиционер Есть Вентиляция Есть Пожарная сигнализация Есть Красная линия -
Объекты, находящиеся поблизости
Медучреждения
36,6 437м
36,6 438м
Динамика изменения цен на рынке недвижимости ?

За последние полгода средняя сумма аренды за кв.м. уменьшилась на 105 руб. Колебание цен происходило от 5281 руб. до 5773 руб. На текущий момент наблюдается тенденция к росту цены.
По городу Москва, в категории Универсальные помещения
За последние полгода средняя сумма аренды за кв.м. уменьшилась на 43 руб. Колебание цен происходило от 3023 руб. до 3066 руб. На текущий момент наблюдается тенденция к уменьшению цены.
Похожие объявления
Обновлено
20.05.2026
Фотографии
10
Объявление 738571
Москва, Северо-Западный АО, Хорошево-Мневники, Нижние Мнёвники улица, д.12
350 000
руб. / мес Аренда
60 м2
Обновлено
12.05.2026
Фотографии
9
Объявление 733466
Москва, Юго-Восточный АО, Лефортово, Крузенштерна улица, д.3к1
400 000
руб. / мес Аренда
65.9 м2
Обновлено
02.05.2026
Фотографии
15
Объявление 737887
Москва, Юго-Восточный АО, Нижегородский, Смирновская улица, д.2стр6
160 750
руб. / мес Аренда
64.3 м2
Обновлено
24.04.2026
Фотографии
8
Объявление 737618
Москва, Северо-Западный АО, Хорошево-Мневники, Нижние Мнёвники улица, д.12
426 000
руб. / мес Аренда
62.5 м2
Обновлено
22.04.2026
Фотографии
8
Объявление 737500
Москва, Северо-Западный АО, Хорошево-Мневники, Нижние Мнёвники улица, д.12
450 000
руб. / мес Аренда
62.4 м2
Обновлено
19.04.2026
Фотографии
15
Объявление 737291
Москва, Центральный АО, Тверской, Золоторожский Вал улица, д.11стр22
95 441
руб. / мес Аренда
59.7 м2
Обновлено
19.04.2026
Фотографии
15
Объявление 737292
Москва, Центральный АО, Тверской, Золоторожский Вал улица, д.11стр22
98 311
руб. / мес Аренда
61.4 м2
Обновлено
15.04.2026
Фотографии
15
Объявление 725529
Москва, Северо-Западный АО, Хорошево-Мневники, Шеногина улица, д.2/11
657 300
руб. / мес Аренда
62.6 м2
Обновлено
04.04.2026
Фотографии
15
Объявление 736645
Москва, Центральный АО, Тверской, Золоторожский Вал улица, д.11стр22
92 503
руб. / мес Аренда
61.7 м2
Обновлено
18.03.2026
Фотографии
9
Объявление 735763
Москва, Юго-Восточный АО, Южнопортовый, Новоостаповская улица, д.20
300 480
руб. / мес Аренда
62.6 м2
Вход в личный кабинет