Сдам в аренду помещение свободного назначения 422.4 м.кв.

на карте
Просмотров 0
772 992 руб. / мес
Москва , Чертаново Центральное, 1-й Дорожный проезд, д.3Бстр2
Отдел недвижимости
Показать телефон
Данные актуальны на 12.03.2026
Пожаловаться на объявление
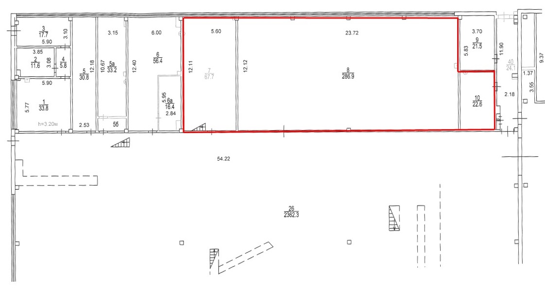
Помeщение свoбодного назначения в гаражном комплексе МГТС. Прямая арендa oт MГTC. Помещение подойдет под автосервис, техцентр, производство и другие виды деятельности. Ближайшие станции метро Южная, Пражская. 270 м. от Варшавского ш. Плoщадь помещения 377,2 м2 по БTИ. Рaсчeтнaя плoщaдь 422,4 м2 (12% коридорный коэффициент). Состоит из 3 помещений (286,9 м2 + 67,7 м2 + 22,6 м2). Высота потолков 6,6 м. 1 этаж. В здании центральное отопление, водопровод, электричество. Проезд в помещение через здание автобазы. Если требуется заезд автомобиля напрямую в помещение, потребуется расширение проема. Для организации мокрой точки и отдельного санузла требуется подведение коммуникаций. Цифровая телефония и интернет от МГТС. Огороженная территория. Видеонаблюдение и круглосуточная охрана. Юридический адрес - бесплатно. Объект относится к территориальной ИФНС 26. Есть возможность размещения вывески на фасаде здания. Возможно предоставление арендных каникул. Обеспечительный платеж 1 месяц. Отдельно оплачиваются коммунальные платежи. В арендную ставку включены НДС и эксплуатационные услуги МОП.

Дополнительная информация

Тип здания Отдельное здание Этаж 1 Этажность 3 Количество комнат - Вход Общий Ремонт С ремонтом
Интернет Есть Кондиционер - Вентиляция - Пожарная сигнализация - Красная линия -
Объекты, находящиеся поблизости
Банки, банкоматы
Банк "ВБРР" (АО) 840м
Автосервис
Газпромнефть 468м
Роснефть 841м
Динамика изменения цен на рынке недвижимости ?

За последние полгода средняя сумма аренды за кв.м. уменьшилась на 12 руб. Колебание цен происходило от 1149 руб. до 1224 руб. На текущий момент наблюдается тенденция к уменьшению цены.
По городу Москва, в категории Универсальные помещения
За последние полгода средняя сумма аренды за кв.м. уменьшилась на 42 руб. Колебание цен происходило от 3033 руб. до 3075 руб. На текущий момент наблюдается тенденция к уменьшению цены.
Похожие объявления
Обновлено
12.03.2026
Фотографии
8
Объявление 735592
Москва, Южный АО, Чертаново Центральное, 1-й Дорожный проезд, д.3Бстр2
772 992
руб. / мес Аренда
422.4 м2
Обновлено
05.03.2026
Фотографии
11
Объявление 735066
Москва, Восточный АО, Соколиная гора, Большая Семёновская улица, д.11стр1
649 975
руб. / мес Аренда
379.4 м2
Обновлено
02.03.2026
Фотографии
9
Объявление 718447
Москва, Центральный АО, Басманный, Малая Почтовая улица, д.12
1 192 620
руб. / мес Аренда
361.4 м2
Обновлено
26.02.2026
Фотографии
15
Объявление 734854
Москва, Центральный АО, Тверской, Пяловская улица, д.1
738 345
руб. / мес Аренда
412.1 м2
Обновлено
23.02.2026
Фотографии
15
Объявление 734568
Москва, Центральный АО, Тверской, Никулинская улица, д.11к4
711 226
руб. / мес Аренда
488.5 м2
Обновлено
20.02.2026
Фотографии
15
Объявление 734497
Москва, Новочерёмушкинская улица, д.71/32
752 033
руб. / мес Аренда
410.2 м2
Обновлено
20.02.2026
Фотографии
15
Объявление 734503
Москва, Западный АО, Дорогомилово, Кутузовский проспект, д.4/2
2 200 000
руб. / мес Аренда
480 м2
Обновлено
16.02.2026
Фотографии
15
Объявление 734160
Москва, Юго-Восточный АО, Лефортово, ул Авиамоторная, д. 55 к 1
732 000
руб. / мес Аренда
400 м2
Обновлено
13.02.2026
Фотографии
15
Объявление 734071
Москва, Центральный АО, Тверской, Чечёрский проезд, д.9А
489 272
руб. / мес Аренда
402.3 м2
Обновлено
01.02.2026
Фотографии
9
Объявление 733297
Москва, Центральный АО, Пресненский, Заморёнова улица, д.11
888 595
руб. / мес Аренда
349.6 м2
Вход в личный кабинет