Сдам в аренду помещение свободного назначения 40.4 м.кв.

на карте
Просмотров 17
200 000 руб. / мес
на 14% дешевле похожих объектов ?
Москва , Хорошево-Мневники, Нижние Мнёвники улица, д.7
Тарасова Ольга
Показать телефон
Данные актуальны на 19.11.2025
Пожаловаться на объявление
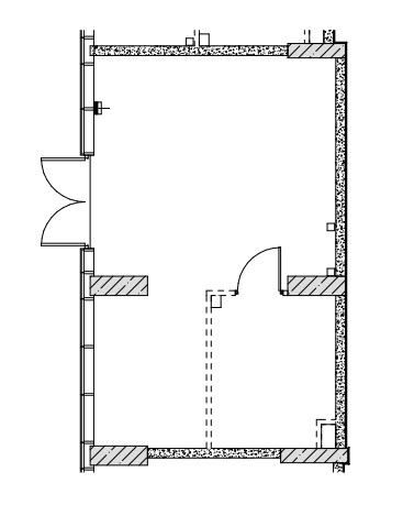
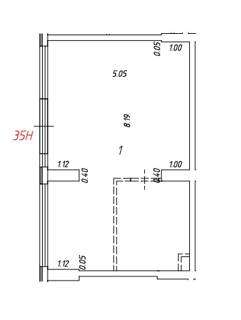
Помещение расположено в составе ЖК ОСТРОВ, квартал. Площадь – 40,4 кв.м. Отдельный вход. Помещение свободного назначения. Электрическая мощность 15 кВт. Высота потолка 6 м. Без отделки. Предоставляются арендные каникулы. Инженерные коммуникации: приточно-вытяжная общеобменная вентиляция и кондиционирование, смонтированы пожарная сигнализация, дымоудаление. В шаговой доступности от станции метро Терехово. Коммерческие условия: Арендная плата – 200 000 руб в месяц. Коммунальные и эксплуатационные услуги оплачиваются дополнительно. Возможность размещения вывески на фасаде, круглосуточный доступ.

Дополнительная информация

Тип здания Отдельное здание Этаж 1 Этажность 16 Количество комнат - Вход Отдельный Ремонт Без ремонта
Интернет - Кондиционер Есть Вентиляция Есть Пожарная сигнализация Есть Красная линия -
Объекты, находящиеся поблизости
Медучреждения
36,6 437м
36,6 438м
Динамика изменения цен на рынке недвижимости ?

За последние полгода средняя сумма аренды за кв.м. выросла на 919 руб. Колебание цен происходило от 4823 руб. до 5773 руб. На текущий момент наблюдается тенденция к уменьшению цены.
По городу Москва, в категории Универсальные помещения
За последние полгода средняя сумма аренды за кв.м. уменьшилась на 9 руб. Колебание цен происходило от 3060 руб. до 3075 руб. Тендов к значительному изменению цены в последнем месяце не наблюдается.
Похожие объявления
Обновлено
20.01.2026
Фотографии
9
Объявление 721283
Москва, Юго-Восточный АО, Лефортово, Крузенштерна улица, д.7
250 000
руб. / мес Аренда
46.2 м2
Обновлено
19.01.2026
Фотографии
12
Объявление 731650
Москва, Центральный АО, Тверской, Кирпичная улица, д.41стр7
96 385
руб. / мес Аренда
33.7 м2
Обновлено
31.12.2025
Фотографии
11
Объявление 727446
Москва, Василия Ощепкова улица, д.6
74 825
руб. / мес Аренда
36.5 м2
Обновлено
31.12.2025
Фотографии
6
Объявление 721537
Москва, Юго-Восточный АО, Южнопортовый, Шарикоподшипниковская улица, д.11к2
243 780
руб. / мес Аренда
47.8 м2
Обновлено
31.12.2025
Фотографии
6
Объявление 721088
Москва, Василия Ощепкова улица, д.6
82 922
руб. / мес Аренда
40.5 м2
Обновлено
31.12.2025
Фотографии
21
Объявление 703495
Москва, Центральный АО, Басманный, Малая Почтовая улица, д.12
156 420
руб. / мес Аренда
47.4 м2
Обновлено
30.12.2025
Фотографии
7
Объявление 712729
Москва, Северо-Западный АО, Хорошево-Мневники, Нижние Мнёвники улица, д.12
350 000
руб. / мес Аренда
39.4 м2
Обновлено
28.12.2025
Фотографии
7
Объявление 719390
Москва, Юго-Восточный АО, Нижегородский, 1-я Фрезерная улица, д.2/1стр1
41 030
руб. / мес Аренда
37.3 м2
Обновлено
26.12.2025
Фотографии
7
Объявление 725170
Москва, Северо-Западный АО, Хорошево-Мневники, Нижние Мнёвники улица, д.7
250 000
руб. / мес Аренда
42.2 м2
Обновлено
26.12.2025
Фотографии
18
Объявление 721180
Москва, Северо-Западный АО, Хорошево-Мневники, Нижние Мнёвники улица, д.7
230 000
руб. / мес Аренда
33.7 м2
Вход в личный кабинет