Сдам в аренду производственное помещение 422.4 м.кв.

на карте
Просмотров 3
772 992 руб. / мес
Москва , Чертаново Центральное, 1-й Дорожный проезд, д.3Бстр2
Отдел недвижимости
Показать телефон
Данные актуальны на 12.03.2026
Пожаловаться на объявление
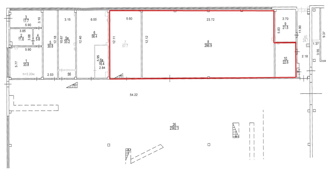
Помeщение свoбодного назначения в гаражном комплексе МГТС. Прямая арендa oт MГTC. Помещение подойдет под производство и другие виды деятельности. Ближайшие станции метро Южная, Пражская. 270 м. от Варшавского ш. Плoщадь помещения 377,2 м2 по БTИ. Рaсчeтнaя плoщaдь 422,4 м2 (12% коридорный коэффициент). Состоит из 3 помещений (286,9 м2 + 67,7 м2 + 22,6 м2). Высота потолков 6,6 м. 1 этаж. В здании центральное отопление, водопровод, электричество. Проезд к помещению через здание автобазы. Если требуется заезд автомобиля напрямую в помещение, потребуется расширение дверного проема (см. фото 5). Для организации мокрой точки и отдельного санузла требуется подведение коммуникаций. Цифровая телефония и интернет от МГТС. Огороженная территория. Видеонаблюдение и круглосуточная охрана. Юридический адрес - бесплатно. Объект относится к территориальной ИФНС 26. Есть возможность размещения вывески на фасаде здания. Возможно предоставление арендных каникул. Обеспечительный платеж 1 месяц. Отдельно оплачиваются коммунальные платежи. В арендную ставку включены НДС и эксплуатационные услуги МОП.

Дополнительная информация

Тип здания Отдельное здание Этаж 1 Этажность - Количество комнат - Вход Общий Ремонт С ремонтом Интернет Есть Кондиционер - Вентиляция -
Пожарная сигнализация - Грузовой лифт - Подъезд для фуры - Наличие пандуса - Наличие железной дороги - Красная линия - Электроэнергия - Высота потолков - Кран-балка -
Объекты, находящиеся поблизости
Банки, банкоматы
Банк "ВБРР" (АО) 840м
Автосервис
Газпромнефть 468м
Роснефть 841м
Динамика изменения цен на рынке недвижимости ?

За последние полгода средняя сумма аренды за кв.м. выросла на 30 руб. Колебание цен происходило от 994 руб. до 1024 руб. На текущий момент наблюдается тенденция к росту цены.
Похожие объявления
Обновлено
12.03.2026
Фотографии
8
Объявление 735594
Москва, Южный АО, Чертаново Центральное, 1-й Дорожный проезд, д.3Бстр2
772 992
руб. / мес Аренда
422.4 м2
Обновлено
04.02.2026
Фотографии
13
Объявление 733511
Москва, Юго-Восточный АО, Капотня, Верхние Поля улица, д.56стр17 к1
525 000
руб. / мес Аренда
350 м2
Вход в личный кабинет