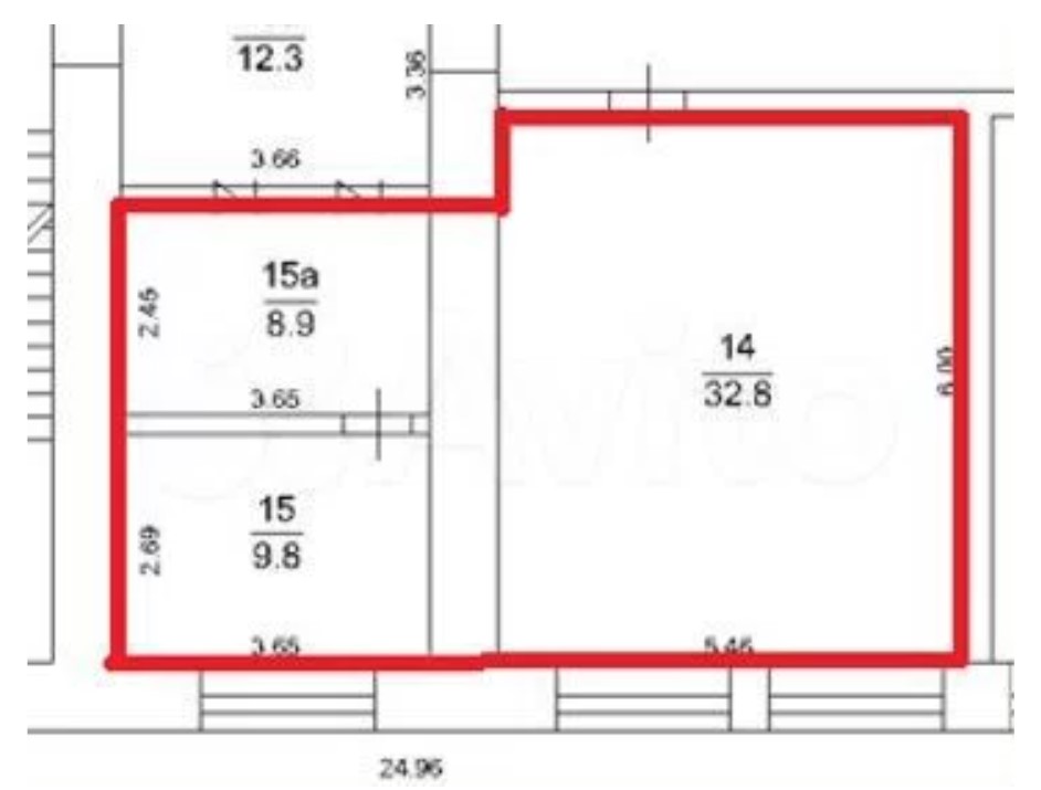
Сдам в аренду офис 51.5 м.кв.

на карте
Просмотров 2
115 875 руб. / мес
на 20% дешевле похожих объектов ?
Москва , Тверской, Самокатная улица, д.4стр1
Дмитрий
Показать телефон
метро
назначения
Данные актуальны на 11.03.2026
Пожаловаться на объявление
СОБСТВЕННИК предлагает в аренду представительский офисный блок на территории бывшего завода Кристалл. Адрес: Самокатная улица, 4с1. Площадь 51,5 кв. м. Высота потолков 4,50 м. Большие окна, презентабельный вход, свой с/у, вход в офис - со стороны Самокатной улицы. Красивая охраняемая территория с собственной огромной парковкой. В летний сезон в зоне фонтана проводятся различные развлекательные мероприятия. Круглосуточный доступ. Удобная транспортная доступность, вблизи от остановок наземного пассажирского транспорта, офис находится вблизи от ТТК и Золоторожской набережной. Ставка 27 000 руб. за кв м. в год. Отдельно оплачивается эксплуатационный сбор и коммунальные услуги. НДС включен в ставку. Нас могут искать, как: помещение под офис, помещение под коворкинг, помещение под фотостудию, помещение под компанию, офис у метро Курская, офис у метро Площадь Ильича, коворкинг у метро Курская, коворкинг у метро Площадь Ильича.

Дополнительная информация

Тип здания Торговый центр Класс БЦ - Этаж 1 Этажность 2 Количество комнат - Вход Общий Ремонт С ремонтом
Интернет - Кондиционер - Вентиляция - Пожарная сигнализация - Пропускная система - Охраняемая парковка Есть
Объекты, находящиеся поблизости
Банки, банкоматы
ПАО Банк "ФК Открытие" 623м
Столовые, кафе
Magma coffee 92м
Донер кебаб 99м
Chat noir 108м
Паскуччи 176м
Джем 206м
Медучреждения
Клинический онкологический диспансер №1 243м
Фармленд 450м
Автосервис
Газпромнефть 330м
Динамика изменения цен на рынке недвижимости ?

По району Тверской, в категории Офисная недвижимость » Офисы
За последние полгода средняя сумма аренды за кв.м. уменьшилась на 92 руб. Колебание цен происходило от 2791 руб. до 2883 руб. На текущий момент наблюдается тенденция к уменьшению цены.
По городу Москва, в категории Офисная недвижимость » Офисы
За последние полгода средняя сумма аренды за кв.м. выросла на 11 руб. Колебание цен происходило от 1937 руб. до 1948 руб. На текущий момент наблюдается тенденция к росту цены.
Похожие объявления
Обновлено
05.03.2026
Фотографии
12
Объявление 720872
Москва, Западный АО, Крылатское, Осенний бульвар, д.8А
330 000
руб. / мес Аренда
60 м2
Обновлено
05.03.2026
Фотографии
6
Объявление 720834
Москва, Восточный АО, Соколиная гора, Большая Семёновская улица, д.11стр3
75 000
руб. / мес Аренда
49 м2
Обновлено
28.02.2026
Фотографии
5
Объявление 734972
Москва, Юго-Восточный АО, Печатники, 3-й Угрешский проезд, д.6стр5
81 405
руб. / мес Аренда
60.3 м2
Обновлено
27.02.2026
Фотографии
15
Объявление 734932
Москва, Центральный АО, Тверской, Золоторожский Вал улица, д.11стр22
100 000
руб. / мес Аренда
60.3 м2
Обновлено
24.02.2026
Фотографии
7
Объявление 734719
Москва, Восточный АО, Ивановское, Большой Купавенский проезд, д.1
55 000
руб. / мес Аренда
44.2 м2
Обновлено
20.02.2026
Фотографии
8
Объявление 734502
Москва, Северо-Восточный АО, Лианозово, Илимская улица, д.3 к1
53 100
руб. / мес Аренда
53.1 м2
Обновлено
20.02.2026
Фотографии
5
Объявление 734442
Москва, Юго-Западный АО, Коньково, Бутлерова улица, д.17 б
72 675
руб. / мес Аренда
57 м2
Обновлено
18.02.2026
Фотографии
11
Объявление 733003
Москва, Северный АО, Западное Дегунино, Бусиновская Горка улица, д.11
48 650
руб. / мес Аренда
41.7 м2
Обновлено
18.02.2026
Фотографии
11
Объявление 733004
Москва, Северный АО, Западное Дегунино, Бусиновская Горка улица, д.11
48 650
руб. / мес Аренда
41.7 м2
Обновлено
10.02.2026
Фотографии
8
Объявление 733510
Москва, Юго-Восточный АО, Южнопортовый, Сайкина улица, д.13к1 стр 1
63 750
руб. / мес Аренда
51 м2
Вход в личный кабинет