Сдам в аренду офис 51 м.кв.

на карте
Просмотров 0
72 590 руб. / мес
Москва , Южнопортовый, Сайкина улица, д.13к1 стр 1
Отдел недвижимости
Показать телефон
назначения
Данные актуальны на 04.02.2026
Пожаловаться на объявление
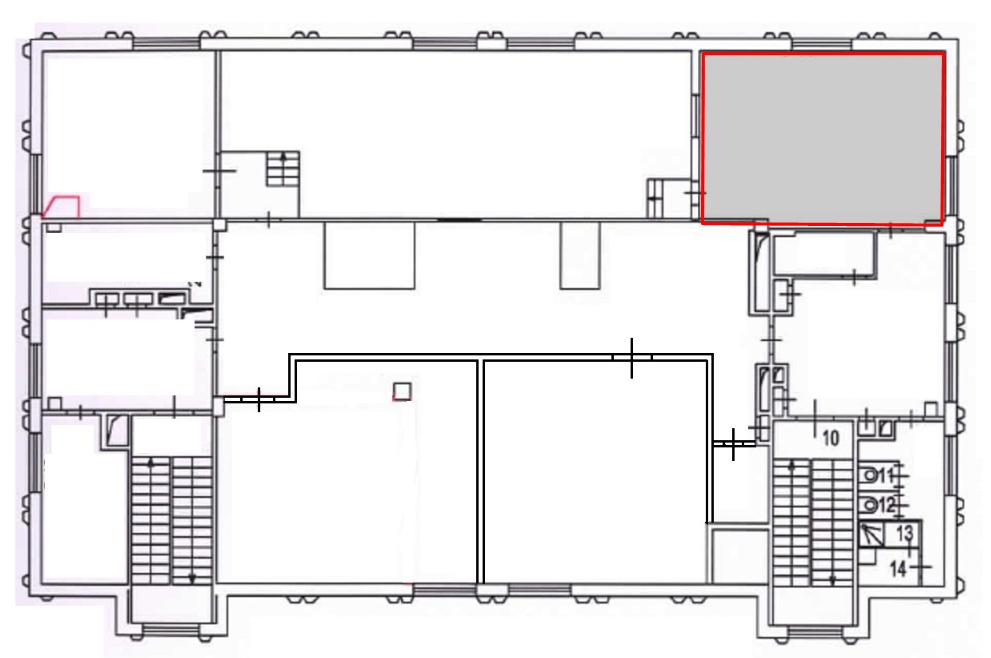
Офис в административном здании. Прямая арeндa oт MГTC. Ближайшая станция метро Автозаводская, 5 мин. пешком. Объект располагается около Кожуховского затона. Площадь помещения 45,5 м2 пo БTИ. Pасчeтнaя площaдь 51 м2 (12% коридорный коэффициент). Кабинетная планировка. Высота потолков 4 м. Этаж 3. Лифт отсутствует Цифровая телефония и интернет от МГТС. Огороженная территория. Видеонаблюдение и круглосуточная охрана. Юридический адрес - бесплатно. Объект относится к территориальной ИФНС 23. Есть возможность размещения вывески на фасаде здания. Обеспечительный платеж 1 месяц. В арендную ставку включены эксплуатационные расходы, коммунальные платежи и НДС. С агентствами и брокерами не работаем. Комиссию не выплачиваем.

Дополнительная информация

Тип здания Торговый центр Класс БЦ - Этаж 3 Этажность 3 Количество комнат - Вход Общий Ремонт С ремонтом
Интернет Есть Кондиционер - Вентиляция - Пожарная сигнализация - Пропускная система Есть Охраняемая парковка Есть
Объекты, находящиеся поблизости
Банки, банкоматы
ПАО Сбербанк 150м
Столовые, кафе
Боцман 275м
Jumbo Cafe 362м
Hatimaki 552м
Медучреждения
ОртоПоинт 79м
Добрая аптека 116м
Dентал Мир 125м
Главная аптека 254м
Диалог 388м
Автосервис
Эверон 340м
Динамика изменения цен на рынке недвижимости ?

За последние полгода средняя сумма аренды за кв.м. выросла на 82 руб. Колебание цен происходило от 1326 руб. до 1423 руб. На текущий момент наблюдается тенденция к росту цены.
По городу Москва, в категории Офисная недвижимость » Офисы
За последние полгода средняя сумма аренды за кв.м. выросла на 8 руб. Колебание цен происходило от 1936 руб. до 1944 руб. На текущий момент наблюдается тенденция к росту цены.
Похожие объявления
Обновлено
26.01.2026
Фотографии
3
Объявление 732925
Москва, Юго-Восточный АО, Печатники, 3-й Угрешский проезд, д.6стр5
81 405
руб. / мес Аренда
60.3 м2
Обновлено
03.02.2026
Фотографии
8
Объявление 733463
Москва, Юго-Восточный АО, Южнопортовый, Сайкина улица, д.13к1 стр 1
72 590
руб. / мес Аренда
51 м2
Обновлено
02.02.2026
Фотографии
7
Объявление 733301
Москва, Северо-Восточный АО, Алтуфьевский, Алтуфьевское шоссе, д.60
57 462
руб. / мес Аренда
47.1 м2
Обновлено
02.02.2026
Фотографии
7
Объявление 733302
Москва, Северо-Восточный АО, Алтуфьевский, Алтуфьевское шоссе, д.60
57 462
руб. / мес Аренда
47.1 м2
Обновлено
27.01.2026
Фотографии
11
Объявление 733003
Москва, Северный АО, Западное Дегунино, Бусиновская Горка улица, д.11
48 650
руб. / мес Аренда
41.7 м2
Обновлено
27.01.2026
Фотографии
11
Объявление 733004
Москва, Северный АО, Западное Дегунино, Бусиновская Горка улица, д.11
48 650
руб. / мес Аренда
41.7 м2
Обновлено
26.01.2026
Фотографии
5
Объявление 730520
Москва, Южный АО, Чертаново Центральное, Байкальская улица, д.35А
70 672
руб. / мес Аренда
59.6 м2
Обновлено
26.01.2026
Фотографии
8
Объявление 730522
Москва, Южный АО, Чертаново Центральное, Байкальская улица, д.35А
70 672
руб. / мес Аренда
59.6 м2
Обновлено
22.01.2026
Фотографии
9
Объявление 732852
Москва, 1-й Красковский проезд, д.38А
61 834
руб. / мес Аренда
42 м2
Обновлено
16.01.2026
Фотографии
7
Объявление 732413
Москва, Северо-Западный АО, Южное Тушино, Сходненская улица, д.9
105 302
руб. / мес Аренда
54.9 м2
Вход в личный кабинет