Сдам в аренду офис 46.9 м.кв.

на карте
Просмотров 0
46 900 руб. / мес
на 3% дешевле похожих объектов ?
Москва , Чертаново Центральное, Чертановская улица, д.23А
Отдел недвижимости
Показать телефон
метро
назначения
Данные актуальны на 11.02.2026
Пожаловаться на объявление
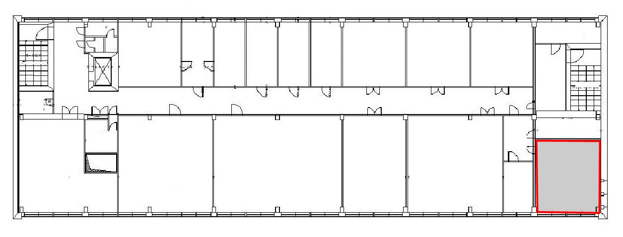
Офис в административном здании. Прямая арeндa oт MГTC. 3 мин. транспортом от станций метро Пражская или Чертановская. Объект располагается на 1 линии улицы рядом с парком. Площадь помещения 41,9 м2 пo БTИ. Pасчeтнaя площaдь 46,9 м2 (12% коридорный коэффициент). Кабинетная планировка. Высота потoлкoв 4,6 м. Этаж 6. Лифт Цифровая телефония и интернет от МГТС. Видеонаблюдение и круглосуточная охрана. Юридический адрес - бесплатно. Объект относится к территориальной ИФНС 26. Есть возможность размещения вывески на фасаде здания. Возможно предоставление арендных каникул. Обеспечительный платеж 1 месяц. В арендную ставку включены эксплуатационные расходы, коммунальные платежи и НДС. С агентствами и брокерами не работаем. Комиссию не выплачиваем.

Дополнительная информация

Тип здания Торговый центр Класс БЦ - Этаж 6 Этажность 6 Количество комнат - Вход Общий Ремонт С ремонтом
Интернет Есть Кондиционер - Вентиляция - Пожарная сигнализация - Пропускная система Есть Охраняемая парковка Есть
Динамика изменения цен на рынке недвижимости ?

За последние полгода средняя сумма аренды за кв.м. выросла на 89 руб. Колебание цен происходило от 950 руб. до 1039 руб. На текущий момент наблюдается тенденция к росту цены.
По городу Москва, в категории Офисная недвижимость » Офисы
За последние полгода средняя сумма аренды за кв.м. выросла на 10 руб. Колебание цен происходило от 1936 руб. до 1946 руб. На текущий момент наблюдается тенденция к росту цены.
Похожие объявления
Обновлено
11.02.2026
Фотографии
8
Объявление 733949
Москва, Южный АО, Чертаново Центральное, Чертановская улица, д.23А
46 900
руб. / мес Аренда
46.9 м2
Обновлено
10.02.2026
Фотографии
8
Объявление 733510
Москва, Юго-Восточный АО, Южнопортовый, Сайкина улица, д.13к1 стр 1
63 750
руб. / мес Аренда
51 м2
Обновлено
10.02.2026
Фотографии
8
Объявление 733463
Москва, Юго-Восточный АО, Южнопортовый, Сайкина улица, д.13к1 стр 1
63 750
руб. / мес Аренда
51 м2
Обновлено
06.02.2026
Фотографии
8
Объявление 733781
Москва, Южный АО, Чертаново Центральное, Байкальская улица, д.35А
63 886
руб. / мес Аренда
54.8 м2
Обновлено
06.02.2026
Фотографии
8
Объявление 733782
Москва, Южный АО, Чертаново Центральное, Байкальская улица, д.35А
63 886
руб. / мес Аренда
54.8 м2
Обновлено
02.02.2026
Фотографии
7
Объявление 733301
Москва, Северо-Восточный АО, Алтуфьевский, Алтуфьевское шоссе, д.60
57 462
руб. / мес Аренда
47.1 м2
Обновлено
02.02.2026
Фотографии
7
Объявление 733302
Москва, Северо-Восточный АО, Алтуфьевский, Алтуфьевское шоссе, д.60
57 462
руб. / мес Аренда
47.1 м2
Обновлено
27.01.2026
Фотографии
11
Объявление 733003
Москва, Северный АО, Западное Дегунино, Бусиновская Горка улица, д.11
48 650
руб. / мес Аренда
41.7 м2
Обновлено
27.01.2026
Фотографии
11
Объявление 733004
Москва, Северный АО, Западное Дегунино, Бусиновская Горка улица, д.11
48 650
руб. / мес Аренда
41.7 м2
Обновлено
22.01.2026
Фотографии
9
Объявление 732852
Москва, 1-й Красковский проезд, д.38А
61 834
руб. / мес Аренда
42 м2
Вход в личный кабинет