Сдам в аренду офис 165.6 м.кв.

Просмотров 21
1 335 155 руб. / мес
Москва , Хамовники, Остоженка улица, д.3/14
Орлов Артур
Показать телефон
назначения
Данные актуальны на 29.12.2025
Пожаловаться на объявление
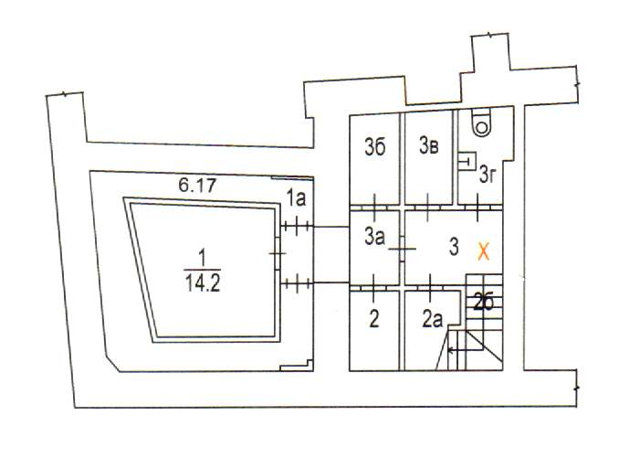
Код лота: РАД-439551. Реализуется на торгах. Предлагается в аренду нежилое помещение общей площадью 165,6 кв. м, расположенное по адресу: Российская Федерация, город Москва, вн. тер.г. муниципальный округ Хамовники, улица Остоженка, дом 3/14, помещение 1/П. Кадастровый номер: 77: 01: 0001050: 2800. Вид права: собственность ПАО "Сбербанк". Помещение расположено на 1-м и подвальном этаже 6-этажного жилого дома 1909 года постройки. Дом является ОКН. Состав площадей: подвал: площадь помещения составляет 53,1 кв. м (где основная площадь 14,2 кв. м, вспомогательная 38,9 кв. м) ; высота потолка 2,9 м; 1 этаж: площадь помещения составляет 112,5 кв. м, где основная площадь 86,1 кв. м; вспомогательная 26,4 кв. м; высота потолка 3,3 м. Помещение имеет отдельный вход с улицы Остоженка. В помещении выполнена отделка под функциональные нужды кредитного учреждения. Состояние ремонта соответствует назначению. Инженерные коммуникации: отопление, водоснабжение, канализация, электричество центральные. Выделенная электрическая мощность 20 кВт. Есть техническая возможность для установки систем вентиляции и кондиционирования. Помещение расположено в историческом центре Москвы, на первой линии улицы Остоженка, хорошо просматривается с улицы Пречистенка, а также с площади Пречистенские Ворота. Пешеходная и автомобильная проходимость 24/7. Объект обладает исключительной транспортной доступностью: в пешей доступности (150 метров) станция метро «Кропоткинская», станция метро «Парк культуры» в 15 минутах ходьбы. Рядом расположены остановки наземного общественного транспорта. Удобный подъезд для автомобилей, есть возможность уличной парковки. Объект находится в зоне активной деловой, культурной и туристической активности. В непосредственной близости деловые центры, посольства, музеи (Музей изобразительных искусств им. Пушкина, Храм Христа Спасителя, Зачатьевский монастырь) , галереи, рестораны премиум-класса. Окружающая жилая застройка преимущественно премиального класса. Факторы инвестиционной привлекательности: Премиальное расположение в самом сердце Москвы на одной из самых статусных улиц в 1,5 км от Кремля. Готовая инфраструктура для финансовой, консультационной или представительской деятельности (бывший банковский офис) . Уникальная историческая среда и статус объекта культурного наследия, что повышает имиджевую составляющую для бизнеса. Раздельная планировка с большим залом и подсобными помещениями позволяет гибко зонировать пространство. Наличие отделки. Наличие действующих технических условий для подключения необходимых мощностей. Оптимальное использование: Финансовый сектор: премиальный банковский офис, управляющая компания, представительство. Представительские функции: шоу-рум, галерея, архитектурное или дизайнерское бюро. Сфера услуг: юридическая или консалтинговая фирма, медицинский центр премиум-класса.

Дополнительная информация

Тип здания - Класс БЦ - Этаж 1 Этажность 1 Количество комнат - Вход - Ремонт -
Интернет - Кондиционер - Вентиляция - Пожарная сигнализация - Пропускная система - Охраняемая парковка -
Объекты, находящиеся поблизости
Банки, банкоматы
ЮниКредит Банк 96м
Банк ВТБ (ПАО) 276м
ВТБ 283м
ПАО РОСБАНК 424м
ПАО Сбербанк 494м
Столовые, кафе
Arrurru 10м
Surf Coffee 13м
MoreКот 35м
Maer 80м
Bardot 118м
Медучреждения
IHC 93м
DCH clinic 138м
Deva-Dent 176м
Православная аптека 194м
Неофарм 198м
Автосервис
Кремлёвская АЗС 284м
Мосэнерго 444м
Динамика изменения цен на рынке недвижимости ?

По району Хамовники, в категории Офисная недвижимость » Офисы
За последние полгода средняя сумма аренды за кв.м. выросла на 160 руб. Колебание цен происходило от 3693 руб. до 3853 руб. На текущий момент наблюдается тенденция к росту цены.
По городу Москва, в категории Офисная недвижимость » Офисы
За последние полгода средняя сумма аренды за кв.м. выросла на 7 руб. Колебание цен происходило от 1935 руб. до 1942 руб. На текущий момент наблюдается тенденция к росту цены.
Похожие объявления
Обновлено
20.01.2026
Фотографии
11
Объявление 732596
Москва, Северный АО, Бескудниковский, Маршала Чуйкова улица, д.12
369 996
руб. / мес Аренда
174 м2
Обновлено
19.01.2026
Фотографии
5
Объявление 732491
Москва, Северо-Западный АО, Митино, Пятницкое шоссе, д.43к2
362 313
руб. / мес Аренда
198.7 м2
Обновлено
16.01.2026
Фотографии
11
Объявление 731914
Москва, Южный АО, Бирюлево Западное, Булатниковская улица, д.6к1
274 532
руб. / мес Аренда
136.4 м2
Обновлено
17.11.2025
Фотографии
10
Объявление 727186
Москва, Юго-Восточный АО, Выхино-Жулебино, Ташкентская улица, д.15к2
140 000
руб. / мес Аренда
168 м2
Обновлено
17.11.2025
Фотографии
10
Объявление 727187
Москва, Юго-Восточный АО, Выхино-Жулебино, Ташкентская улица, д.15к2
140 000
руб. / мес Аренда
168 м2
Обновлено
11.11.2025
Фотографии
2
Объявление 728943
Москва, Северный АО, Хорошевский, 4-я Магистральная улица, д.5
216 580
руб. / мес Аренда
154.7 м2
Обновлено
11.11.2025
Фотографии
2
Объявление 728944
Москва, Северный АО, Хорошевский, 4-я Магистральная улица, д.5
217 840
руб. / мес Аренда
155.6 м2
Вход в личный кабинет