Сдам в аренду офис 167 м.кв.

на карте
Объявление в архиве
474 935 руб. / мес
Москва , Преображенское, Преображенская площадь, д.7Астр1
Иванцова Мария
Контактные данные скрыты, так как объявление находится в архиве
Данные актуальны на 12.03.2026
Пожаловаться на объявление
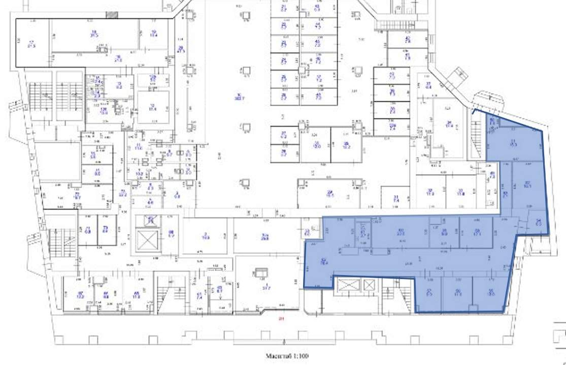
Код лота: РАД-444880. Реализуется на торгах. Сдаётся в аренду просторное помещение идеальное место для вашего бизнеса! Всегов7 минутах пешком от метро «Преображенская площадь» предлагается в аренду коммерческое помещение площадью 166,7м2. Где: площадь Преображенская, дом 7а, строение 1, помещение 2Н (первый этаж административного здания) . Почему это выгодно: Первая линия максимальная видимость и проходимость. Отличная реклама: большая витрина и возможности для размещения вывески. Комфортное пространство: высокие потолки создают ощущение простора. Универсальность: подойдёт для магазина, салона красоты , аптеки, медицинского центра банка или другого бизнеса. https: //catalog. lot-online. ru/index. php?dispatch=products. view&product_id=1595366

Дополнительная информация

Тип здания - Класс БЦ - Этаж 1 Этажность 1 Количество комнат - Вход - Ремонт -
Интернет - Кондиционер - Вентиляция - Пожарная сигнализация - Пропускная система - Охраняемая парковка -
Динамика изменения цен на рынке недвижимости ?

За последние полгода средняя сумма аренды за кв.м. выросла на 347 руб. Колебание цен происходило от 1177 руб. до 1524 руб. Тендов к значительному изменению цены в последнем месяце не наблюдается.
По городу Москва, в категории Офисная недвижимость » Офисы
За последние полгода средняя сумма аренды за кв.м. выросла на 9 руб. Колебание цен происходило от 1939 руб. до 1949 руб. На текущий момент наблюдается тенденция к уменьшению цены.
Похожие объявления
Обновлено
15.04.2026
Фотографии
13
Объявление 737098
Москва, Центральный АО, Якиманка, Щетининский переулок, д.6
449 998
руб. / мес Аренда
142 м2
Обновлено
15.04.2026
Фотографии
13
Объявление 737099
Москва, Центральный АО, Якиманка, Щетининский переулок, д.6
449 998
руб. / мес Аренда
142 м2
Обновлено
15.04.2026
Фотографии
6
Объявление 732491
Москва, Северо-Западный АО, Митино, Пятницкое шоссе, д.43к2
362 313
руб. / мес Аренда
198.7 м2
Обновлено
08.04.2026
Фотографии
5
Объявление 734825
Москва, Восточный АО, Преображенское, Преображенская площадь, д.7Астр1
443 596
руб. / мес Аренда
156 м2
Обновлено
24.03.2026
Фотографии
15
Объявление 717489
Москва, Северный АО, Хорошевский, Зорге улица, д.19
85 600
руб. / мес Аренда
171.2 м2
Обновлено
23.03.2026
Фотографии
11
Объявление 731914
Москва, Южный АО, Бирюлево Западное, Булатниковская улица, д.6к1
274 532
руб. / мес Аренда
136.4 м2
Вход в личный кабинет