Сдам в аренду магазин 406.1 м.кв.

на карте
Объявление в архиве
974 640 руб. / мес
Москва , Северное Бутово, Старокачаловская улица, д.1к1
Платонова Елена Николаевна
Контактные данные скрыты, так как объявление находится в архиве
Данные актуальны на 19.03.2026
Пожаловаться на объявление
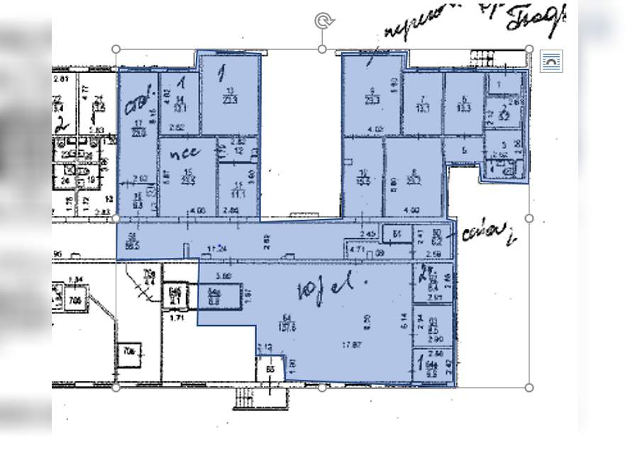
Предлагаем к аренде просторную коммерческую недвижимость общей площадью **406.1 м** на первом этаже жилого дома высотой **17 этажей**, расположенного на первой линии от дороги. Пространство обладает удобной функциональной планировкой, высокими потолками - **3 метра**, обеспечивает комфортные условия для ведения различных видов деятельности. Помещение оснащено всеми необходимыми коммуникациями: централизованное теплоснабжение, водоснабжение и канализация, подведена электроэнергия мощностью **16 кВт**. Отделка выполнена в стиле офиса, что позволяет сразу приступить к работе после приобретения объекта. Просторный холл с отдельным уличным входом создает дополнительное удобство для посетителей и сотрудников. Отличительной особенностью является возможность организовать несколько рабочих зон благодаря большой площади и свободной планировке. Объект идеально подойдет для размещения офисов, центров обслуживания клиентов, медицинских учреждений или иных коммерческих предприятий, нуждающихся в представительском помещении с высокой проходимостью. Реализация через торги.

Дополнительная информация

Тип здания - Этаж 1 Этажность 17 Количество комнат - Вход - Ремонт -
Интернет - Кондиционер - Вентиляция - Пожарная сигнализация - Красная линия - Входные группы -
Динамика изменения цен на рынке недвижимости ?

За последние полгода средняя сумма аренды за кв.м. выросла на 45 руб. Колебание цен происходило от 1808 руб. до 1870 руб. На текущий момент наблюдается тенденция к росту цены.
По городу Москва, в категории Торговая недвижимость » Магазины
За последние полгода средняя сумма аренды за кв.м. уменьшилась на 148 руб. Колебание цен происходило от 7098 руб. до 7258 руб. На текущий момент наблюдается тенденция к росту цены.
Похожие объявления
Обновлено
05.03.2026
Фотографии
15
Объявление 700992
Москва, Центральный АО, Тверской, Комсомольская площадь, д.2
1 000 000
руб. / мес Аренда
359.4 м2
Обновлено
04.03.2026
Фотографии
5
Объявление 735219
Москва, Южный АО, Чертаново Северное, Кировоградская улица, д.8к4
920 014
руб. / мес Аренда
410.4 м2
Обновлено
03.03.2026
Фотографии
7
Объявление 730217
Москва, Центральный АО, Таганский, Марксистская улица, д.34к7
733 463
руб. / мес Аренда
432 м2
Обновлено
10.02.2026
Фотографии
10
Объявление 731078
Москва, Юго-Восточный АО, Марьино, Люблинская улица, д.157к3
731 896
руб. / мес Аренда
456.2 м2
Обновлено
30.01.2026
Фотографии
6
Объявление 733254
Москва, Центральный АО, Таганский, Марксистская улица, д.34к7
817 493
руб. / мес Аренда
383.2 м2
Обновлено
28.01.2026
Фотографии
10
Объявление 733116
Москва, д.1к6а
941 775
руб. / мес Аренда
389.7 м2
Обновлено
28.01.2026
Фотографии
10
Объявление 733058
Москва, Южный АО, Донской, Варшавское шоссе, д.10к1
771 680
руб. / мес Аренда
445.2 м2
Обновлено
14.01.2026
Фотографии
8
Объявление 731410
Москва, Центральный АО, Красносельский, Сретенка улица, д.14
708 390
руб. / мес Аренда
416.7 м2
Обновлено
07.06.2024
Фотографии
8
Объявление 688699
Москва, Юго-Западный АО, Ломоносовский, Вернадского проспект, д.25
858 926
руб. / мес Аренда
419.5 м2
Обновлено
07.06.2024
Фотографии
8
Объявление 688703
Москва, Юго-Западный АО, Ломоносовский, Вернадского проспект, д.25
1 524 802
руб. / мес Аренда
441.3 м2
Вход в личный кабинет