Сдам в аренду магазин 389.7 м.кв.

на карте
Просмотров 23
941 775 руб. / мес
на 67% дешевле похожих объектов ?
Москва , д.1к6а
Платонова Елена Николаевна
Показать телефон
Данные актуальны на 28.01.2026
Пожаловаться на объявление
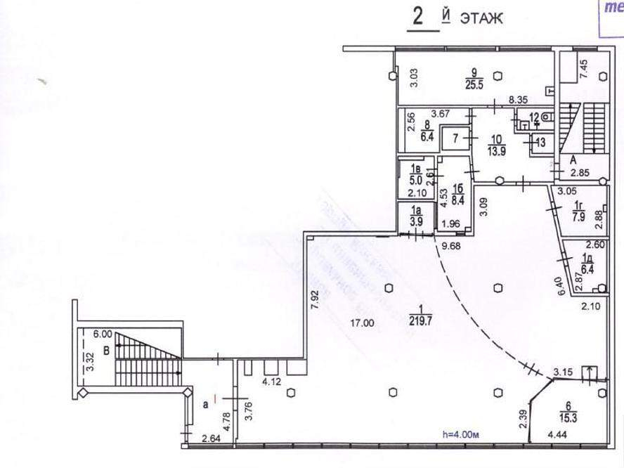
Предлагается к аренде помещение общей площадью 389,7 м, расположенное на 1-ом и 2-ом этажах двухэтажного нежилого Здания. Здание, в котором расположено помещение находится на первой линии домов от дороги, построен в 1974 г. , имеет два этажа и высоту потолков - 3 метра. В наличии чистовая отделка помещений, обеспечены комфорт и удобство благодаря следующим преимуществам: - Центральное муниципальное отопление обеспечивает стабильную подачу тепла. - Водоснабжение и канализация подключены, гарантируют бесперебойное использование воды и отвод сточных вод. - Электроэнергия мощностью 55 кВт позволяет использовать современные бытовые приборы и оборудование. Реализация через торги.

Дополнительная информация

Тип здания - Этаж 1 Этажность 2 Количество комнат - Вход - Ремонт -
Интернет - Кондиционер - Вентиляция - Пожарная сигнализация - Красная линия - Входные группы -
Объекты, находящиеся поблизости
Медучреждения
Горздрав 500м
Горздрав 626м
Апрель 642м
Динамика изменения цен на рынке недвижимости ?

По городу Москва, в категории Торговая недвижимость » Магазины
За последние полгода средняя сумма аренды за кв.м. уменьшилась на 148 руб. Колебание цен происходило от 7098 руб. до 7258 руб. На текущий момент наблюдается тенденция к росту цены.
Похожие объявления
Обновлено
19.03.2026
Фотографии
10
Объявление 733879
Москва, Юго-Западный АО, Северное Бутово, Старокачаловская улица, д.1к1
974 640
руб. / мес Аренда
406.1 м2
Обновлено
05.03.2026
Фотографии
15
Объявление 700992
Москва, Центральный АО, Тверской, Комсомольская площадь, д.2
1 000 000
руб. / мес Аренда
359.4 м2
Обновлено
04.03.2026
Фотографии
5
Объявление 735219
Москва, Южный АО, Чертаново Северное, Кировоградская улица, д.8к4
920 014
руб. / мес Аренда
410.4 м2
Обновлено
03.03.2026
Фотографии
7
Объявление 730217
Москва, Центральный АО, Таганский, Марксистская улица, д.34к7
733 463
руб. / мес Аренда
432 м2
Обновлено
10.02.2026
Фотографии
10
Объявление 731078
Москва, Юго-Восточный АО, Марьино, Люблинская улица, д.157к3
731 896
руб. / мес Аренда
456.2 м2
Обновлено
30.01.2026
Фотографии
6
Объявление 733254
Москва, Центральный АО, Таганский, Марксистская улица, д.34к7
817 493
руб. / мес Аренда
383.2 м2
Обновлено
28.01.2026
Фотографии
10
Объявление 733058
Москва, Южный АО, Донской, Варшавское шоссе, д.10к1
771 680
руб. / мес Аренда
445.2 м2
Обновлено
28.01.2026
Фотографии
4
Объявление 733059
Москва, Южный АО, Нагатинский Затон, Коломенская улица, д.23к2
653 125
руб. / мес Аренда
313.5 м2
Обновлено
14.01.2026
Фотографии
8
Объявление 731410
Москва, Центральный АО, Красносельский, Сретенка улица, д.14
708 390
руб. / мес Аренда
416.7 м2
Обновлено
07.06.2024
Фотографии
8
Объявление 688699
Москва, Юго-Западный АО, Ломоносовский, Вернадского проспект, д.25
858 926
руб. / мес Аренда
419.5 м2
Вход в личный кабинет