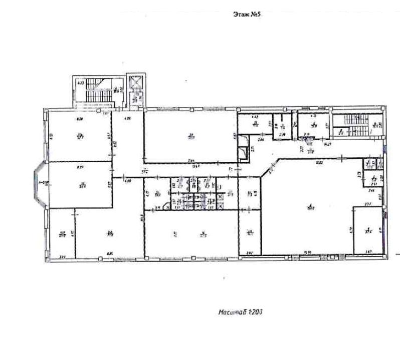
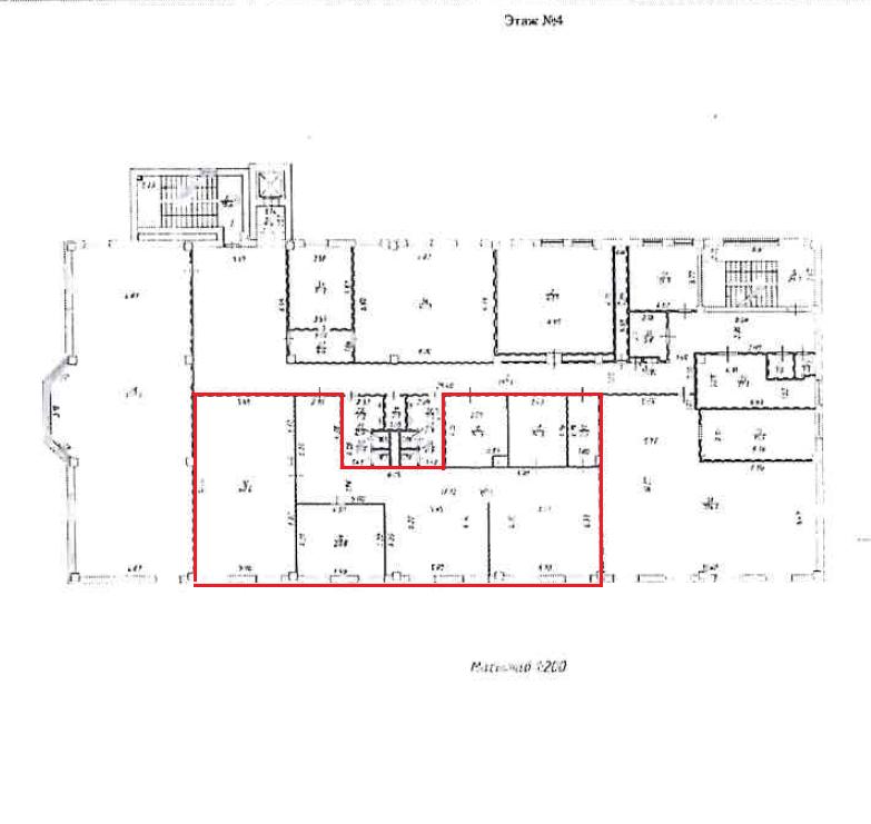
Продам помещение свободного назначения 991 м.кв.

Просмотров 1
215 000 000 руб.
Москва , Черемушки, Каховка улица, д.20А
Олим
Показать телефон
Данные актуальны на 26.04.2026
Пожаловаться на объявление
Предлагается к продаже коммерческий объект единым лотом - готовый арендный бизнес в Москве по ул Каховка, в бизнес-центре рядом с метро Зюзино (5 минут пешком). Общая площадь - ~1 000 м2 (точно: 991 м2=17,1+220,6+301,7+451,6). Помещения расположены на 4 и 5 этажах, полностью готовы к эксплуатации и не требуют дополнительных вложений. Помещения уже сдаются, и приносят ежемесячно прибыль. Продаем в связи с другой большой сделкой. Объект в собственности. Без залогов, без обременений, без судебных ограничений. Чистая юридическая история. Готов к быстрой сделке. Основные характеристики: Площадь: ~1 000 м2 (991 м2) Формат: помещения свободного назначения Состояние: с ремонтом, мебелью и инженерией Арендаторы: действующие, долгосрочные договоры Индексация: предусмотрена Парковка: наземная, рядом со зданием Продажа: исключительно единым лотом Инженерия и оснащение: - вентиляция и кондиционирование - интернет и телекоммуникации - офисная мебель - пожарная сигнализация - охрана Локация и транспортная доступность: Объект расположен в деловом районе с высокой плотностью застройки и устойчивым спросом на аренду. Метро в пешей и удобной транспортной доступности: - Зюзино - Севастопольская - Каховская - Новые Черемушки - Воронцовская - Калужская Удобные подъездные пути, развитая городская инфраструктура, сформированная деловая среда. Финансовые условия: Стоимость объекта - 215 000 000 Средняя цена - ~217 000 за м2 Для реального покупателя готовы обсуждать: - варианты оплаты, - структуру сделки, - индивидуальные условия. Объект подходит как для долгосрочного инвестирования с арендным доходом, так и для последующей перепаковки или продажи частями. Просмотр - по предварительной договоренности. Готовы предоставить дополнительную информацию по арендаторам и доходности. Почему это сильнее банковского депозита? Сегодня депозит может давать 14–16% годовых. Но депозит - это фиксированная доходность без роста капитала. В данном случае инвестор получает: стабильный ежемесячный денежный поток фактическую доходность ~8% годовых уже сегодня потенциал роста доходности до ~14% при выходе на рыночные ставки возможность ежегодной индексации аренды рост стоимости самого объекта со временем Коммерческая недвижимость в Москве - это не просто процент, а актив, который: - защищает капитал от инфляции - может быть перепродан дороже - генерирует кэш-фло независимо от банковской политики Депозит не растет в цене. Недвижимость растет. Поисковые фразы: коммерческая недвижимость москва готовый арендный бизнес москва арендный бизнес с арендаторами продажа коммерческой недвижимости доходная недвижимость москва инвестиционная недвижимость коммерческий объект москва помещение свободного назначения псн москва офисные помещения москва готовый бизнес с арендаторами

Дополнительная информация

Тип здания - Этаж 5 Этажность 5 Количество комнат - Вход Общий Ремонт -
Интернет Есть Кондиционер - Вентиляция - Пожарная сигнализация - Красная линия -
Объекты, находящиеся поблизости
Банки, банкоматы
ПАО Сбербанк 352м
Авангард 562м
АО «ТБанк» 581м
ПАО Сбербанк 582м
Росбанк 592м
Столовые, кафе
ЛаBeerРинт 113м
From 280м
CofeFest 285м
Матча 286м
Крошка Картошка 288м
Медучреждения
Новита 28м
Улыбка столицы 105м
Планета здоровья 284м
Аптека № 7/197 346м
Асна 413м
Автосервис
Teboil 638м
Динамика изменения цен на рынке недвижимости ?

По району Черемушки, в категории Универсальные помещения
За последние полгода средняя сумма за кв.м. выросла на 9745 руб. Колебание цен происходило от 184923 руб. до 194668 руб. На текущий момент наблюдается тенденция к росту цены.
По городу Москва, в категории Универсальные помещения
За последние полгода средняя сумма за кв.м. уменьшилась на 4966 руб. Колебание цен происходило от 282929 руб. до 287895 руб. На текущий момент наблюдается тенденция к уменьшению цены.
Похожие объявления
Обновлено
22.04.2026
Фотографии
15
Объявление 737492
Москва, Центральный АО, Тверской, Пяловская улица, д.1
128 016 000
руб. Продажа
914.4 м2
Обновлено
29.03.2026
Фотографии
13
Объявление 736384
Москва, Центральный АО, Таганский, Рабочая улица, д.84стр4
325 567 000
руб. Продажа
1145.9 м2
Обновлено
28.03.2026
Фотографии
15
Объявление 736378
Москва, Юго-Восточный АО, Нижегородский, Смирновская улица, д.2стр1
195 160 000
руб. Продажа
978.8 м2
Обновлено
23.03.2026
Фотографии
14
Объявление 735904
Москва, Юго-Восточный АО, Марьино, Поречная улица, д.10
95 362 218
руб. Продажа
860.7 м2
Обновлено
03.03.2026
Фотографии
15
Объявление 726831
Москва, Северо-Западный АО, Покровское-Стрешнево, Волоколамское шоссе, д.71/22к1
292 020 631
руб. Продажа
873.6 м2
Обновлено
11.12.2024
Фотографии
4
Объявление 698882
Москва, Западный АО, Раменки, Лобачевского улица, д.114
233 289 000
руб. Продажа
1110.9 м2
Вход в личный кабинет