Продам помещение свободного назначения 121.9 м.кв.

Просмотров 5
28 000 000 руб.
на 27% дешевле похожих объектов ?
Москва , Тверской, Средняя Первомайская улица, д.4
Мария
Показать телефон
Данные актуальны на 12.03.2026
Пожаловаться на объявление
ШИКАРНАЯ ИНВЕСТИЦИЯ! ДОХОДОСТЬ ОТ СДАЧИ В АРЕНДУ 15% ГОДОВЫХ Продажа ОФИСНЫХ и ТОРГОВЫХ помещений! Строго. Не предназначено для проживания! 50 м от м. Первомайская!!! Шикарное предложение для успешного развития вашего бизнеса! Продается помещение свободного назначения 121,9 кв.м. в современном многофункциональном комплексе на Первомайской. Очень удачно расположен в районе Восточное Измайлово, ВАО по адресу: г. Москва, ул. Средняя Первомайская, д. 4. Время в пути от метро Первомайская занимает меньше 1 минуты. Строго. Не предназначено для проживания! Помещение расположено на цокольном этаже. Выполнена отделка в светлых тонах. Установлен санузел с новой сантехникой. Удобная планировка позволит максимально эффективно использовать пространство. Полностью новые коммуникации: водопровод, электропроводка, вентиляция, противопожарная система, домофонная система. Вид использования: офисное, торговое или свободного назначения (не для проживания). 3-этажное кирпичное здание в традиционном английском стиле с огороженной территорией. Проведена полная реновация. Стильный внутренний интерьер общих зон в лофт-стиле. Круглосуточная охрана. На территории действует собственная парковка на 30 м/м. Земельный участок в долгосрочной аренде. Высокоразвитая инфраструктура района, идеальная локация, интенсивный пешеходный и автомобильный трафик, является несомненным плюсом для владельцев бизнеса или для тех, кто планирует арендовать помещение в данном комплексе: - всего 50 метров от ст.м. Первомайская; - БЦ окружен плотным жилым массивом; - рядом отделение Сбербанка, ВТБ, страховые и юридические агентства, Центр услуг для бизнеса ВАО; - образовательные учреждения (школа и детский сад), аптеки и поликлиники, продовольственные и хозяйственные магазины. Отличное решение для вашего бизнеса. Не упустите возможность стать частью современного и функционального БЦ на Первомайской. Ежедневный показ. Онлайн показ. ЗВОНИТЕ! С удовольствием ответим на все ваши вопросы.

Дополнительная информация

Тип здания Бизнес-центр Этаж Цоколь Этажность 3 Количество комнат 1 Вход Отдельный Ремонт С ремонтом
Интернет - Кондиционер Есть Вентиляция Есть Пожарная сигнализация Есть Красная линия -
Динамика изменения цен на рынке недвижимости ?

По району Тверской, в категории Универсальные помещения
За последние полгода средняя сумма за кв.м. уменьшилась на 12508 руб. Колебание цен происходило от 312795 руб. до 325303 руб. На текущий момент наблюдается тенденция к уменьшению цены.
По городу Москва, в категории Универсальные помещения
За последние полгода средняя сумма за кв.м. уменьшилась на 5827 руб. Колебание цен происходило от 282978 руб. до 288805 руб. На текущий момент наблюдается тенденция к уменьшению цены.
Похожие объявления
Обновлено
19.03.2026
Фотографии
1
Объявление 735601
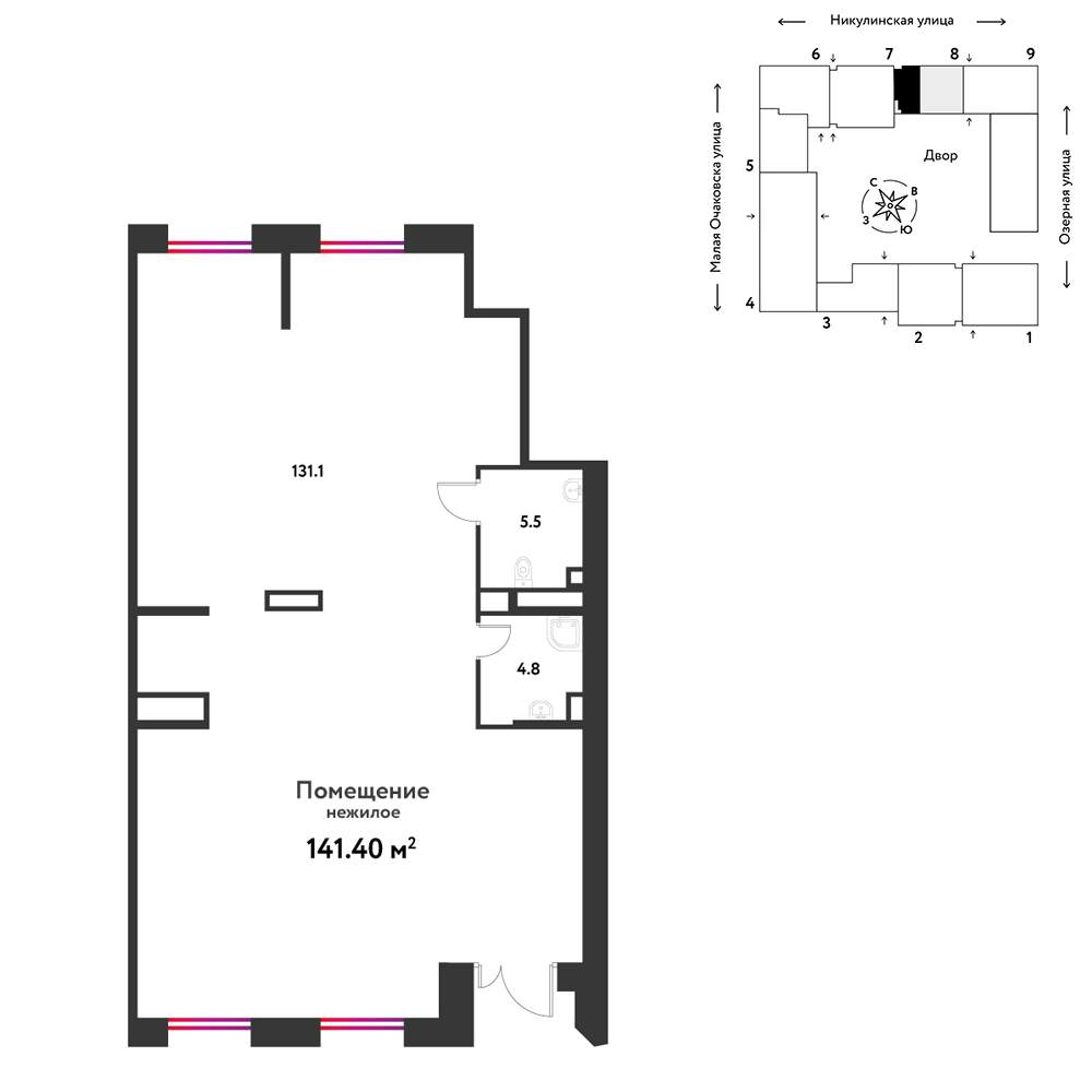
Москва, Озёрная улица, д.влд42
82 790 400
руб. Продажа
141.4 м2
Обновлено
17.03.2026
Фотографии
6
Объявление 735737
Москва, Центральный АО, Мещанский, Звонарский переулок, д.1
38 000 000
руб. Продажа
136.4 м2
Обновлено
16.03.2026
Фотографии
5
Объявление 735614
Москва, Иловайская улица, д.1
50 990 000
руб. Продажа
116 м2
Обновлено
16.03.2026
Фотографии
9
Объявление 735546
Москва, Юго-Западный АО, Черемушки, Нахимовский проспект, д.47к1
38 446 000
руб. Продажа
118.5 м2
Обновлено
26.02.2026
Фотографии
15
Объявление 734452
Москва, Центральный АО, Тверской, Пяловская улица, д.1
21 875 000
руб. Продажа
125 м2
Обновлено
24.02.2026
Фотографии
6
Объявление 734658
Москва, Восточный АО, Соколиная гора, Фортунатовская улица, д.10
25 060 000
руб. Продажа
140.1 м2
Обновлено
18.02.2026
Фотографии
15
Объявление 734275
Москва, Северо-Восточный АО, Марьина роща, Стрелецкая улица, д.18
37 600 000
руб. Продажа
103 м2
Обновлено
13.02.2026
Фотографии
15
Объявление 726877
Москва, д.10А
41 678 736
руб. Продажа
107.7 м2
Обновлено
13.02.2026
Фотографии
15
Объявление 726880
Москва, д.10А
49 118 915
руб. Продажа
136.5 м2
Обновлено
13.02.2026
Фотографии
15
Объявление 726884
Москва, д.10А
48 883 955
руб. Продажа
113.5 м2
Вход в личный кабинет