Продам офис 250.5 м.кв.

Просмотров 0
68 000 000 руб.
250.5 м2
Москва , Войковский, 6-й Новоподмосковный переулок, д.3
Татьяна Берестовская
Показать телефон
назначения
Данные актуальны на 18.03.2026
Пожаловаться на объявление
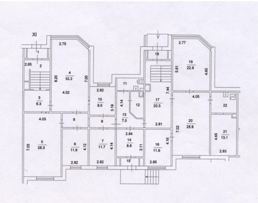
Продается отличный офис 250,5 м2 у метро Войковская! Идеально подходит для учебного центра, образовательной организации или другого бизнеса, требующего просторных помещений. Есть надежные арендаторы! Характеристики: - Площадь: 250,5 м2 - Этаж: 1-й, отдельный вход - Высота потолков: 2,64 м - Класс здания: B - Ремонт: косметический - Вентиляция: естественная - Кондиционирование: местное - Отопление: центральное - Сигнализация: установлена - Санузлы: 3 - Транспортная доступность: 12 минут пешком до метро Войковская, рядом остановки общественного транспорта. Преимущества: - Просторное помещение, легко адаптируемое под различные нужды. - Отличный вариант для учебных заведений благодаря удобному расположению и планировке. - Возможность приобрести готовый арендный бизнес. - Развитая инфраструктура района. Звоните прямо сейчас, чтобы узнать подробности и договориться о просмотре!

Дополнительная информация

Тип здания - Класс БЦ - Этаж 1 Этажность 17 Количество комнат 8 Вход Отдельный Ремонт С ремонтом
Интернет Есть Кондиционер - Вентиляция - Пожарная сигнализация - Пропускная система - Охраняемая парковка -
Объекты, находящиеся поблизости
Банки, банкоматы
Лэнд-Кредит 262м
ТКБ БАНК ПАО 390м
Столовые, кафе
Оливка 150м
PizzaExpress 239м
Папа Джонс 306м
Мадина 421м
Додо Пицца 605м
Медучреждения
Горздрав 206м
Клиника лечения головной боли и вегетативных расстройств им. академика Александра Вейна 298м
СМ-Клиника 430м
36,6 591м
Столички 660м
Динамика изменения цен на рынке недвижимости ?

По району Войковский, в категории Офисная недвижимость » Офисы
За последние полгода средняя сумма за кв.м. выросла на 2251 руб. Колебание цен происходило от 183655 руб. до 185906 руб. На текущий момент наблюдается тенденция к росту цены.
По городу Москва, в категории Офисная недвижимость » Офисы
За последние полгода средняя сумма за кв.м. выросла на 20481 руб. Колебание цен происходило от 348114 руб. до 368595 руб. На текущий момент наблюдается тенденция к росту цены.
Похожие объявления
Обновлено
18.03.2026
Фотографии
15
Объявление 733534
Москва, Северо-Западный АО, Хорошево-Мневники, 3-я Хорошёвская улица, д.18/2
109 111 410
руб. Продажа
253.1 м2
Обновлено
18.03.2026
Фотографии
15
Объявление 734990
Москва, Северо-Западный АО, Хорошево-Мневники, 3-я Хорошёвская улица, д.18/2
112 026 300
руб. Продажа
257 м2
Обновлено
18.03.2026
Фотографии
15
Объявление 734991
Москва, Северо-Западный АО, Хорошево-Мневники, 3-я Хорошёвская улица, д.18/2
123 815 900
руб. Продажа
299 м2
Обновлено
18.03.2026
Фотографии
15
Объявление 728608
Москва, Северо-Западный АО, Хорошево-Мневники, 3-я Хорошёвская улица, д.18/2
110 544 640
руб. Продажа
257.8 м2
Обновлено
18.03.2026
Фотографии
15
Объявление 728609
Москва, Северо-Западный АО, Хорошево-Мневники, 3-я Хорошёвская улица, д.18/2
124 746 250
руб. Продажа
287.5 м2
Обновлено
18.03.2026
Фотографии
15
Объявление 728611
Москва, Северо-Западный АО, Хорошево-Мневники, 3-я Хорошёвская улица, д.18/2
122 149 270
руб. Продажа
299.9 м2
Обновлено
18.03.2026
Фотографии
15
Объявление 728612
Москва, Северо-Западный АО, Хорошево-Мневники, 3-я Хорошёвская улица, д.18/2
107 721 400
руб. Продажа
254 м2
Обновлено
18.03.2026
Фотографии
15
Объявление 728197
Москва, Северо-Западный АО, Хорошево-Мневники, 3-я Хорошёвская улица, д.18/2
88 609 860
руб. Продажа
243.3 м2
Обновлено
18.03.2026
Фотографии
15
Объявление 728198
Москва, Северо-Западный АО, Хорошево-Мневники, 3-я Хорошёвская улица, д.18/2
89 750 800
руб. Продажа
236 м2
Обновлено
18.03.2026
Фотографии
15
Объявление 726992
Москва, Северо-Западный АО, Хорошево-Мневники, 3-я Хорошёвская улица, д.18/2
110 986 200
руб. Продажа
251.1 м2
Вход в личный кабинет