Продам офис 115.1 м.кв.

Просмотров 3
53 751 700 руб.
Москва , Хорошево-Мневники, 2-й Силикатный проезд, д.8
Отдел продаж
Показать телефон
метро
назначения
Данные актуальны на 06.03.2026
Пожаловаться на объявление
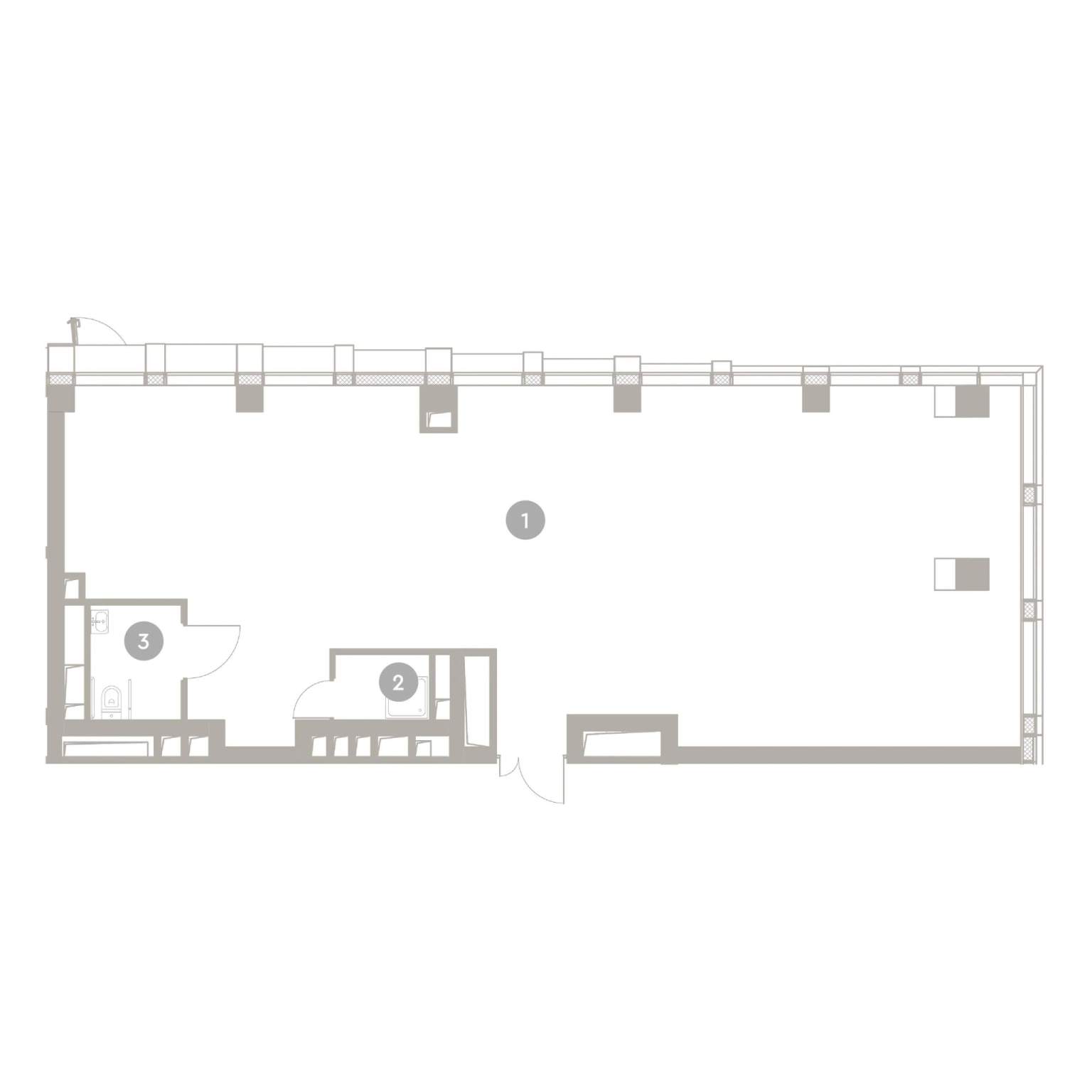
Рассрочка 0% В проекте уже возведен монолит. Ведутся инженерные и фасадные работы. Продается офисное помещение класса «А» площадью 115,1 м2 в ультрасовременном комплексе бизнес-класса - ЭМОУШН от ГК ОСНОВА, расположенном в престижном районе Хорошёво-Мнёвники. Продажа от Застройщика. Помещение находится на 8 этаже 3 корпуса. Имеет удобную эргономичную прямоугольную планировку, которая обеспечивает максимальную эффективность пространства. В офисе предусмотрен отдельный санузел и помещение для уборочного инвентаря, что подчёркивает высокий уровень функциональности и комфорта. ХАРАКТЕРИСТИКИ - Продажа по ДДУ - Перспективная локация с высоким трафиком - помещение санузла, помещение уборочного инвентаря - высота потолков - 3 м - панорамное остекление - подземная парковка - современные системы вентиляции, кондиционирования, пожаротушения, дымоудаления, отвечающие всем нормам действующего законодательства. - 7 лифтов на этаже Комплекс ЭМОУШН располагается на территории Большого Сити - в масштабном проекте комплексного развития территории, который является одним из самых популярных бизнес-районов Москвы. О ПРОЕКТЕ - уникальная современная архитектура от бюро Камень - функциональный подземный паркинг и скоростные лифты - современные материалы и инженерные системы - панорамное остекление и высокая инсоляция - авторское благоустройство, амфитеатр, прогулочные зоны - панорамные виды на город и «Москва-Сити» - собственный СПА-комплекс с бассейном - рестораны, кафе и магазины ТРАНСПОРТНАЯ ДОСТУПНОСТЬ - имеет быстрый выезд на Звенигородское шоссе - до метро «Звенигородская» всего в 5 минутах пешком, м. «Полежаевская» 15-20 минут пешком. - 10 минут до делового центра «Москва-Сити» - 10 минут до Садового кольца - 5 минут до ТТК - 600 м до речного транспорта. Электрический трамвай соединяет 18 столичных районов. ОКРУЖЕНИЕ Территория Большого Сити является одним из самых востребованных бизнес-районов, где расположены офисы крупнейших компаний. Поблизости находится крупный деловой центр Москва-Сити, путь до которого займет всего 10 минут на автомобиле. УСЛОВИЯ: Продажа по ДДУ. Покупка доступна в рассрочку. Покупка возможна в лизинг на выгодных условиях.

Дополнительная информация

Тип здания - Класс БЦ A Этаж 8 Этажность 27 Количество комнат - Вход - Ремонт -
Интернет - Кондиционер Есть Вентиляция Есть Пожарная сигнализация Есть Пропускная система - Охраняемая парковка Есть
Динамика изменения цен на рынке недвижимости ?

За последние полгода средняя сумма за кв.м. уменьшилась на 1066 руб. Колебание цен происходило от 409654 руб. до 421444 руб. На текущий момент наблюдается тенденция к росту цены.
По городу Москва, в категории Офисная недвижимость » Офисы
За последние полгода средняя сумма за кв.м. выросла на 18619 руб. Колебание цен происходило от 348114 руб. до 366733 руб. На текущий момент наблюдается тенденция к росту цены.
Похожие объявления
Обновлено
06.03.2026
Фотографии
15
Объявление 735355
Москва, Северо-Западный АО, Строгино, Маршала Прошлякова улица, д.21
52 307 050
руб. Продажа
134.5 м2
Обновлено
06.03.2026
Фотографии
15
Объявление 735357
Москва, Северо-Западный АО, Строгино, Маршала Прошлякова улица, д.21
47 368 020
руб. Продажа
121.8 м2
Обновлено
06.03.2026
Фотографии
15
Объявление 735359
Москва, Северо-Западный АО, Строгино, Маршала Прошлякова улица, д.21
52 038 000
руб. Продажа
106.2 м2
Обновлено
06.03.2026
Фотографии
15
Объявление 735361
Москва, Северо-Западный АО, Строгино, Маршала Прошлякова улица, д.21
56 497 000
руб. Продажа
115.3 м2
Обновлено
06.03.2026
Фотографии
15
Объявление 735362
Москва, Северо-Западный АО, Строгино, Маршала Прошлякова улица, д.21
55 367 060
руб. Продажа
115.3 м2
Обновлено
06.03.2026
Фотографии
15
Объявление 735363
Москва, Северо-Западный АО, Строгино, Маршала Прошлякова улица, д.21
44 792 500
руб. Продажа
94.3 м2
Обновлено
06.03.2026
Фотографии
15
Объявление 735365
Москва, Северо-Западный АО, Строгино, Маршала Прошлякова улица, д.21
44 769 331
руб. Продажа
122.6 м2
Обновлено
06.03.2026
Фотографии
15
Объявление 735368
Москва, Северо-Западный АО, Строгино, Маршала Прошлякова улица, д.21
40 511 510
руб. Продажа
109.7 м2
Обновлено
06.03.2026
Фотографии
15
Объявление 735370
Москва, Северо-Западный АО, Строгино, Маршала Прошлякова улица, д.21
40 076 000
руб. Продажа
107.9 м2
Обновлено
06.03.2026
Фотографии
15
Объявление 735335
Москва, Северо-Западный АО, Хорошево-Мневники, 2-й Силикатный проезд, д.8
52 837 800
руб. Продажа
106.1 м2
Вход в личный кабинет