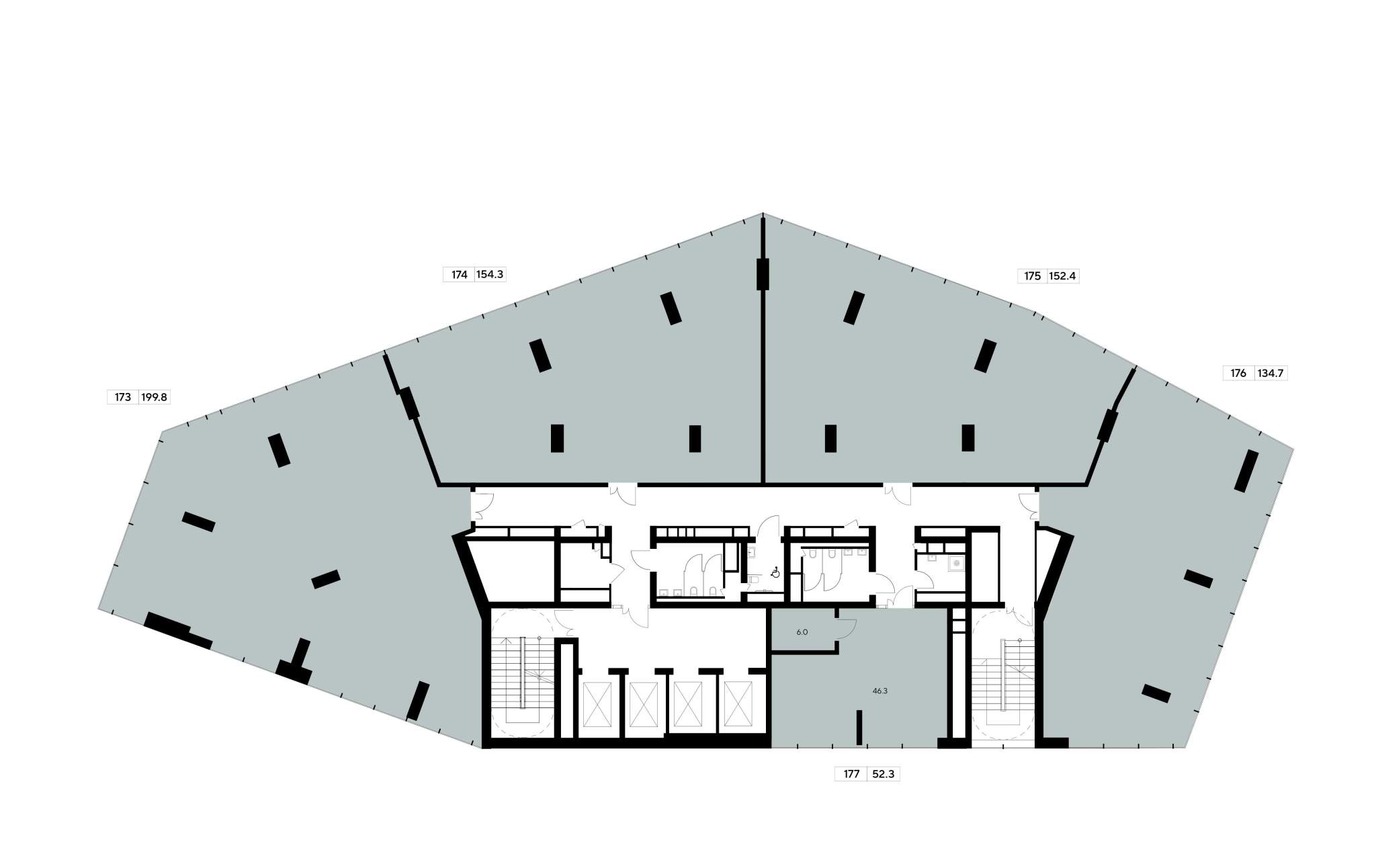
Продам офис 52.3 м.кв.

на карте
Просмотров 5
28 190 223 руб.
Москва , Кунцево, Ярцевская улица, д.21стр2
Отдел продаж
Показать телефон
назначения
Данные актуальны на 15.01.2026
Пожаловаться на объявление
МУЛЬТИОФИС Концепция мультиофиса позволит эффективно разделить операционные процессы в рамках одного бизнес-центра. Фронт-офис: Разместите подразделения, ориентированные на клиентов, в шоу-румах и ретейле на первых этажах Мидл-офис: Для административно-управленческих блоков идеально подойдут современные и стильные офисные пространства с open space. Бэк-офис: Для IT-инфраструктуры и служб поддержки в проекте представлены технически оснащенные блоки, в том числе с отдельными персональными серверными. HQ: Для стратегического руководства и представительских функций мы предлагаем офисы под штаб-квартиры. ЧЕЛОВЕКОЦЕНТРИЧНАЯ СРЕДА Все, что нужно для продуктивной работы и качественного отдыха: Ресторан с летней террасой Шопинг-променад Фитнес-центр СПА Гольф-симулятор Конференц-залы Коворкинги Переговорные комнаты, в том числе ZOOM-переговорные Сквер и событийная площадь Подземная и наземная парковки с зарядками для электромобилей Велопарковка и парковка для самокатов со станцией зарядки PROPERTY MANAGEMENT У инвесторов есть возможность передать недвижимость в управление профессиональному офис-партнёру. Сервисная УК возьмет на себя всю операционную составляющую бизнеса, что позволит собственнику получать пассивный доход без прямого участия. Привлечение арендаторов Юридическое сопровождение Техническое обслуживание Сервисное обслуживание и оперативный ремонт помещения Отчетность перед собственником в личном кабинете инвестора Выполнение ремонта под запрос собственника или арендатора Опытным инвесторам, имеющим масштабный портфель, это позволит систематизировать управление и использовать актив с максимальной эффективностью. БЛАГОУСТРОЙСТВО Консорциум SCAPE и dot. bureau разработал многофункциональное публичное пространство. Здесь деловая активность гармонично сочетается с комфортом. В центре - просторная встречающая площадь, рассчитанная на большой пешеходный поток. Пространство открытое, понятное: в нем легко ориентироваться и удобно назначать встречу у знакового арт-объекта. Для повседневного отдыха предусмотрен уютный сквер и покет-парки, а для неформальных встреч и работы на свежем воздухе - уличные коворкинги. Ориентироваться поможет стильная дизайнерская навигация, которая завершает целостный и эстетичный образ пространства. ТЕХНОЛОГИИ Технология улучшенной шумоизоляции SOUNDSTOP Энергоэффективная технология TERMO-S с теплосберегающими окнами Умная система inOFFICE с мобильным приложением: заказ пропусков управление системой климат-контроля автоматический сбор и передача показаний счетчиков подключение к камерам видеонаблюдения оперативная связь со службой охраны Отдельные индивидуальные серверные 8 лифтов с ожиданием не более 30 секунд, сервисные лифты Централизованная система вентиляции Возможность открытия окон на всех высотах Система кондиционирования чиллер-фанкойл

Дополнительная информация

Тип здания - Класс БЦ - Этаж 29 Этажность 40 Количество комнат 1 Вход - Ремонт Без ремонта
Интернет - Кондиционер - Вентиляция - Пожарная сигнализация - Пропускная система - Охраняемая парковка -
Объекты, находящиеся поблизости
Банки, банкоматы
ПАО "МОСКОВСКИЙ КРЕДИТНЫЙ БАНК" 167м
Московский кредитный банк 170м
Инвестбанк 196м
ВТБ 205м
ВТБ 283м
Столовые, кафе
Cinnabon 69м
Суши маке 85м
Pizza Hut 90м
Farsh 96м
Cofix 99м
Медучреждения
Горздрав 126м
36,6 170м
36,6 225м
Столички 328м
Будь Здоров! 351м
Автосервис
Энергия Москвы 330м
Autoclub Moscow 338м
Динамика изменения цен на рынке недвижимости ?

По городу Москва, в категории Офисная недвижимость » Офисы
За последние полгода средняя сумма за кв.м. выросла на 11041 руб. Колебание цен происходило от 346874 руб. до 358604 руб. На текущий момент наблюдается тенденция к росту цены.
Похожие объявления
Обновлено
19.01.2026
Фотографии
5
Объявление 727702
Москва, Юго-Восточный АО, Лефортово, Золоторожский Вал улица, д.11стр1
33 204 600
руб. Продажа
55.9 м2
Обновлено
19.01.2026
Фотографии
5
Объявление 727703
Москва, Юго-Восточный АО, Лефортово, Золоторожский Вал улица, д.11стр1
33 316 400
руб. Продажа
55.9 м2
Обновлено
19.01.2026
Фотографии
5
Объявление 727694
Москва, Юго-Восточный АО, Лефортово, Золоторожский Вал улица, д.11стр1
32 361 700
руб. Продажа
55.7 м2
Обновлено
19.01.2026
Фотографии
5
Объявление 727695
Москва, Юго-Восточный АО, Лефортово, Золоторожский Вал улица, д.11стр1
32 473 100
руб. Продажа
55.7 м2
Обновлено
15.01.2026
Фотографии
5
Объявление 732299
Москва, Западный АО, Кунцево, Ярцевская улица, д.21стр2
31 074 615
руб. Продажа
60.5 м2
Обновлено
15.01.2026
Фотографии
5
Объявление 732300
Москва, Западный АО, Кунцево, Ярцевская улица, д.21стр2
31 377 115
руб. Продажа
60.5 м2
Обновлено
15.01.2026
Фотографии
5
Объявление 732301
Москва, Западный АО, Кунцево, Ярцевская улица, д.21стр2
31 377 115
руб. Продажа
60.5 м2
Обновлено
15.01.2026
Фотографии
5
Объявление 732302
Москва, Западный АО, Кунцево, Ярцевская улица, д.21стр2
31 377 115
руб. Продажа
60.5 м2
Обновлено
15.01.2026
Фотографии
5
Объявление 732303
Москва, Западный АО, Кунцево, Ярцевская улица, д.21стр2
31 377 115
руб. Продажа
60.5 м2
Обновлено
15.01.2026
Фотографии
5
Объявление 732283
Москва, Западный АО, Кунцево, Ярцевская улица, д.21стр2
25 504 188
руб. Продажа
45.8 м2
Вход в личный кабинет