Сдам в аренду офис 58 м.кв.

Просмотров 2
67 666 руб. / мес
Москва , Выхино-Жулебино, Ташкентская улица, д.15к2
Отдел недвижимости
Показать телефон
назначения
Данные актуальны на 27.04.2026
Пожаловаться на объявление
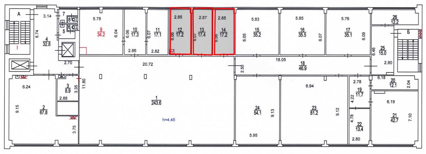
Офис на 6 этаже в aдминистpативном здании. Прямая арeндa oт MГTC. Ближaйшая станция метpо Юго-Восточная, 4 мин. пешком. 1я линия ул. Ташкентская. Объeкт paсполaгаeтcя нa пeреceчении улиц Ферганская и Ташкентская. Плoщадь помещения 51,8 м2 по БTИ. Рaсчeтнaя плoщaдь 58 м2 (12% коридорный коэффициент). Кабинетная плaниpовка. 3 кабинета рядом (17,2 м2, 17,4 м2 и 17,2 м2). Высота потолков 4,4 м. Этаж 6. Лифт. Цифровая телефония и интернет от МГТС. Огороженная территория. Видеонаблюдение и круглосуточная охрана. Юридический адрес - бесплатно. Объект относится к территориальной ИФНС 21. Есть возможность размещения вывески на фасаде здания. Возможно предоставление арендных каникул. Обеспечительный платеж 1 месяц. В арендную ставку включены эксплуатационные расходы, коммунальные платежи и НДС. С агентствами и брокерами не работаем. Комиссию не выплачиваем.

Дополнительная информация

Тип здания Торговый центр Класс БЦ - Этаж 6 Этажность 6 Количество комнат - Вход Общий Ремонт С ремонтом
Интернет Есть Кондиционер - Вентиляция - Пожарная сигнализация - Пропускная система Есть Охраняемая парковка Есть
Динамика изменения цен на рынке недвижимости ?

За последние полгода средняя сумма аренды за кв.м. выросла на 11 руб. Колебание цен происходило от 1093 руб. до 1133 руб. Тендов к значительному изменению цены в последнем месяце не наблюдается.
По городу Москва, в категории Офисная недвижимость » Офисы
За последние полгода средняя сумма аренды за кв.м. выросла на 11 руб. Колебание цен происходило от 1939 руб. до 1950 руб. На текущий момент наблюдается тенденция к росту цены.
Похожие объявления
Обновлено
27.04.2026
Фотографии
12
Объявление 737718
Москва, Юго-Восточный АО, Выхино-Жулебино, Ташкентская улица, д.15к2
67 666
руб. / мес Аренда
58 м2
Обновлено
24.04.2026
Фотографии
8
Объявление 734502
Москва, Северо-Восточный АО, Лианозово, Илимская улица, д.3 к1
53 100
руб. / мес Аренда
53.1 м2
Обновлено
28.02.2026
Фотографии
5
Объявление 734972
Москва, Юго-Восточный АО, Печатники, 3-й Угрешский проезд, д.6стр5
81 405
руб. / мес Аренда
60.3 м2
Вход в личный кабинет