Сдам в аренду офис 12248.5 м.кв.

Просмотров 9
52 709 698 руб. / мес
12248.5 м2
Москва , Хорошево-Мневники, Шеногина улица, д.2/11
Отдел продаж
Показать телефон
назначения
Данные актуальны на 05.02.2026
Пожаловаться на объявление
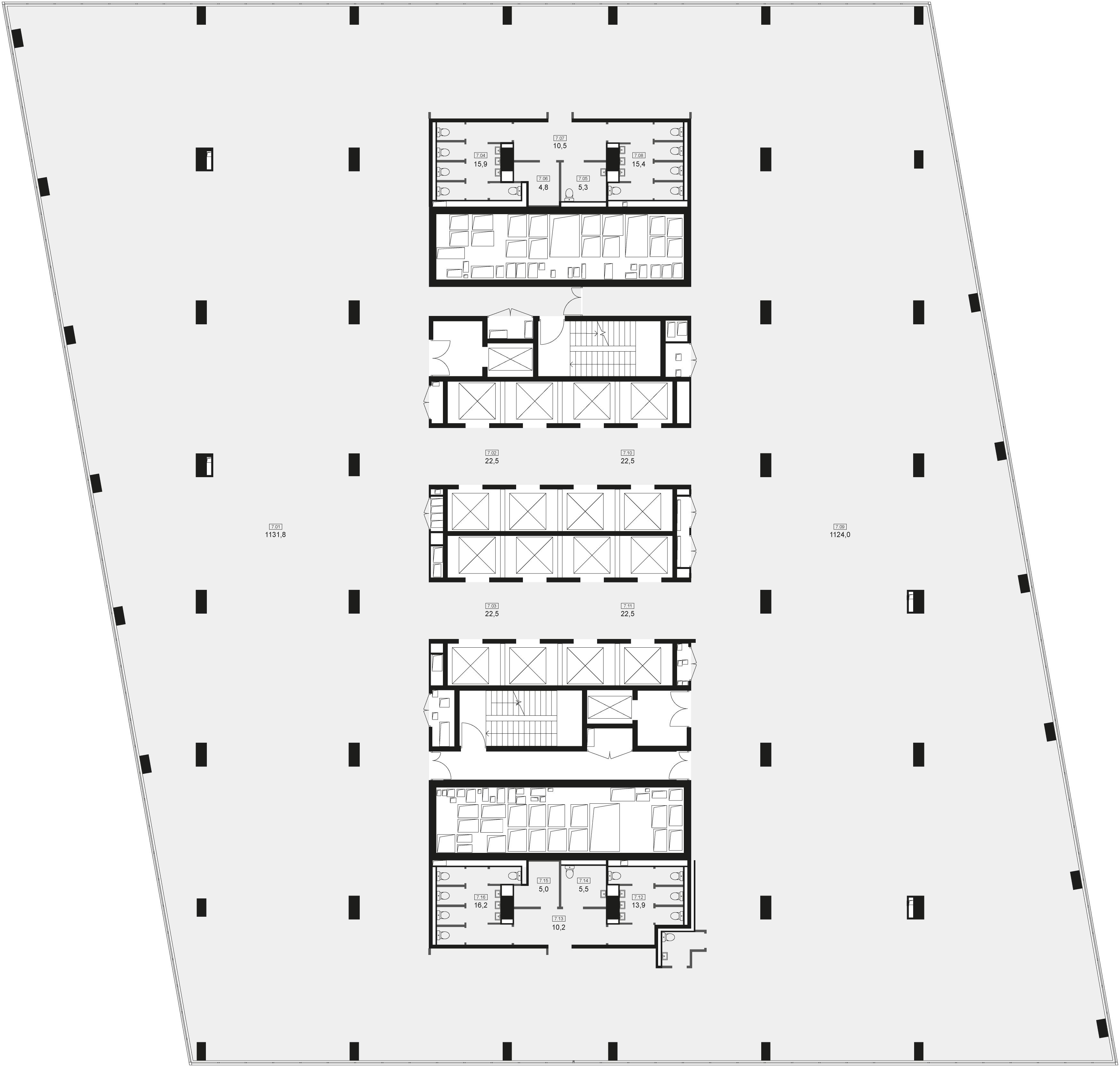
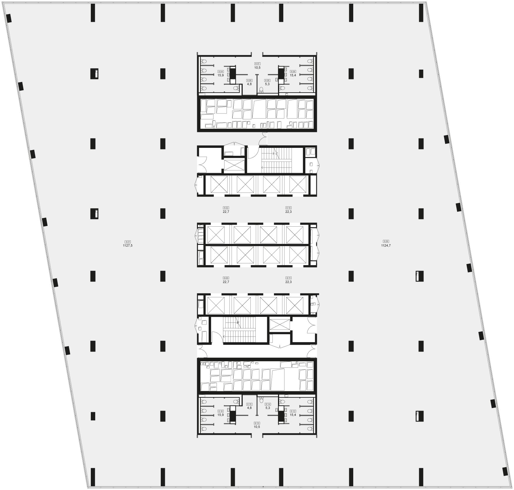
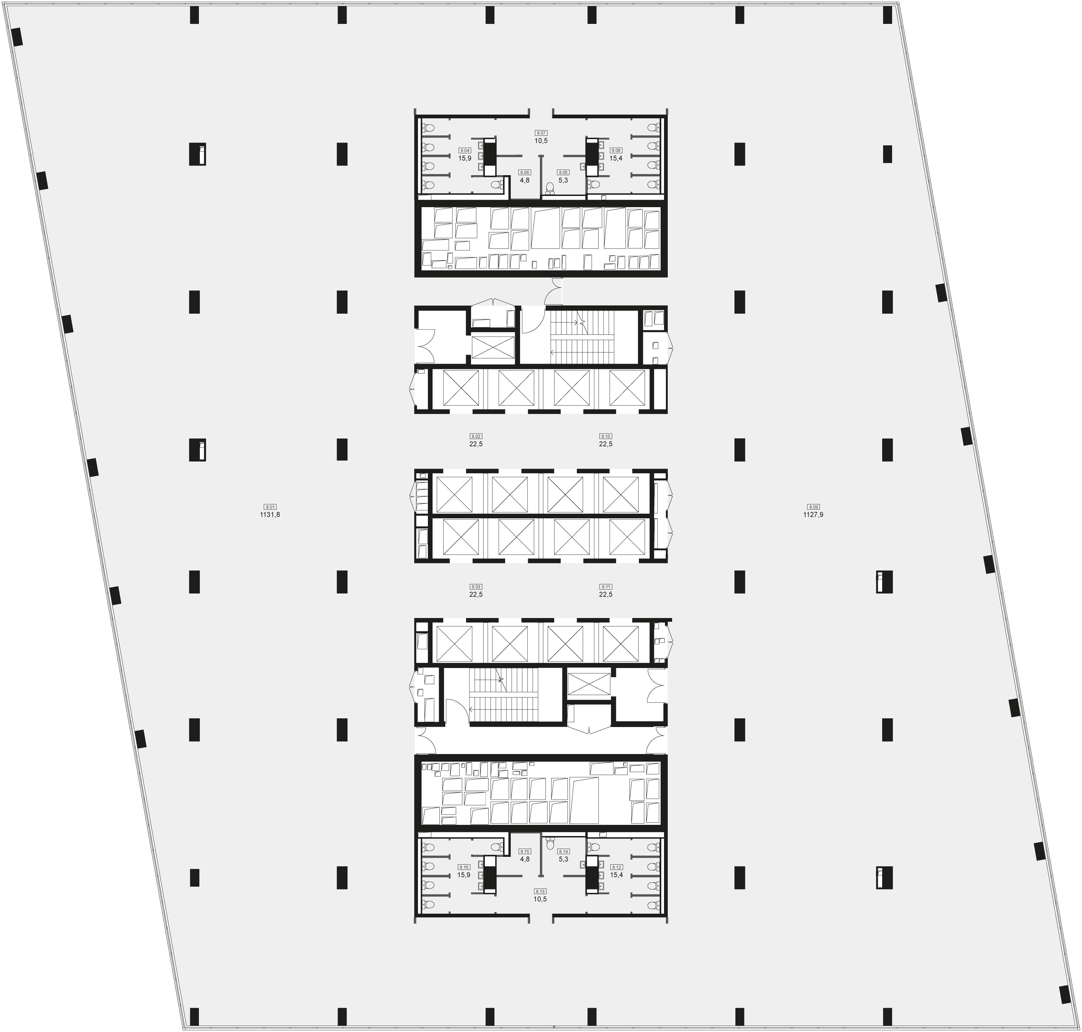
Аренда (офисов/ крупных офисных блоков) в новом БЦ Sydney city, всего в 5 минутах от ММДЦ Москва-сити! В аренду предлагаются офисы без отделки напрямую от ФСК БЕЗ КОМИССИИ!! БЦ Sydney city — это новый Бизнес-центр класса "А" всего в 5 минутах от ММДЦ Москва-сити, а с 4 кв. 2026 г., благодаря открытию новой ст. метро Звенигородская (Рублево-Архангельской ветки), всего в 1 станции метро от Москва-сити! БЦ Sydney city расположен в самом центре Большого Сити с прекрасными видовыми характеристиками на Шелепихинскую набережную. Станция метро и МЦК "Шелепиха" находятся в 15-минутной пешеходной доступности, а с 4 кв. 2026 г. выход из новой ст.м. метро "Звенигородская" будет располагаться непосредственно у входа в бизнес-центр. В новом бизнес-центре предлагаются в долгосрочную аренду офисные помещения площадью от 2 156 до 29 250 м2, которые располагаются на 4-16 этажах. В бизнес-центре выполняется высококачественная отделка мест общего пользования, а офисные помещения сдаются в состоянии "под отделку" (shell&core). Арендодатель готов предоставить арендные каникулы на ремонт или выполнить отделку офисной части помещения по типовому дизайн-проекту ФСК с учетом требований арендатора. БЦ Sydney city - это современные архитектура от бюро Kleinewelt architekten, инженерные решения и комфортные офисы с панорамным остеклением «в пол» и открытой эффективной планировкой. Шаг колонн 8,4 х 8,4 м, энерговооруженность - 100 Вт/м2, 5 отдельных лифтовых групп, в т.ч. 17 грузопассажирских лифтов марки Mitsubishi. Офисы на 4, 11, 16 этажах имеют собственную панорамную террасу. Воздухообмен 60 м3/час, кондиционирование по схеме чиллер/фанк-ойл. Автоматическая система спринклерного пожаротушения, АПС, СОУЭ, ДУ. Автоматизация и диспетчеризация базовых инженерных систем и ПБ. Просторная двусветная входная группа с торгово-сервисными помещениями и рестораном на 1 и 2 этажах. Многоуровневый паркинг на 313 м/м, из них 147 м/м доступны в аренду вместе с офисами. Ставка аренды паркинга – по запросу. Доступ к обширной инфраструктуре ЖК Sydney City. Sydney City - новый проект премиум-класса на Шелепихинской набережной, первый жилой квартал в концепции well being в Москве. На территории в 19,3 га ведется строительство 23 жилых корпусов, переменной этажности 8-44 этажей. Квартал обладает развитой собственной социальной и коммерческой инфраструктурой, начиная от престижной школы и д/с и заканчивая фудхоллом и развлекательным центром. Ставка аренды офисов включает НДС, не включает ОРЕХ и коммунальные платежи. Ставка эксплуатационных расходов определяется в диапазоне от 10 500 до 12 500 руб./кв.м/год вкл. НДС. Позвоните, мы оперативно организуем просмотр помещения в комфортное для вас время и ответим на все интересующие вас вопросы!

Дополнительная информация

Тип здания Бизнес-центр Класс БЦ A+ Этаж 10 Этажность 24 Количество комнат - Вход Общий Ремонт Без ремонта
Интернет - Кондиционер - Вентиляция - Пожарная сигнализация - Пропускная система - Охраняемая парковка -
Объекты, находящиеся поблизости
Столовые, кафе
Surf Coffee 279м
Медучреждения
A.v.e. 467м
Динамика изменения цен на рынке недвижимости ?

За последние полгода средняя сумма аренды за кв.м. выросла на 328 руб. Колебание цен происходило от 1246 руб. до 1574 руб. На текущий момент наблюдается тенденция к росту цены.
По городу Москва, в категории Офисная недвижимость » Офисы
За последние полгода средняя сумма аренды за кв.м. выросла на 11 руб. Колебание цен происходило от 1936 руб. до 1947 руб. На текущий момент наблюдается тенденция к росту цены.
Похожие объявления
Обновлено
05.02.2026
Фотографии
15
Объявление 733543
Москва, Северо-Западный АО, Хорошево-Мневники, Шеногина улица, д.2/11
43 960 077
руб. / мес Аренда
11083.1 м2
Вход в личный кабинет