Сдам в аренду офис 5 м.кв.

на карте
Объявление в архиве
12 000 руб. / мес
Москва , Отрадное, Алтуфьевское шоссе, д.13к5
Сергей Вельяминов
Контактные данные скрыты, так как объявление находится в архиве
метро
назначения
Данные актуальны на 10.02.2026
Пожаловаться на объявление
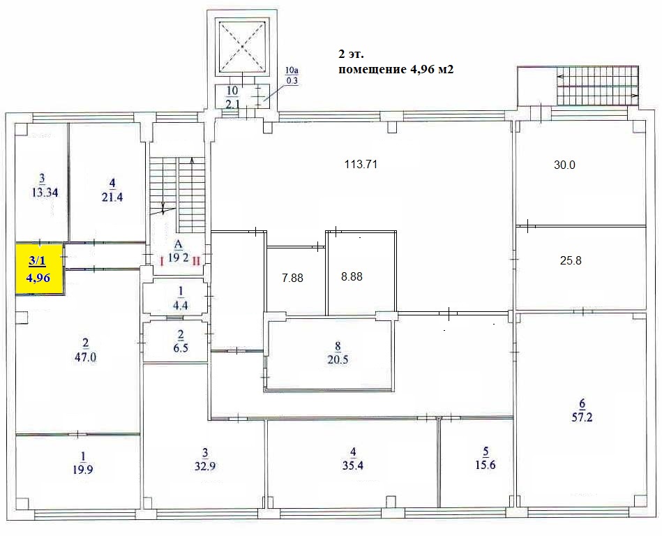
Помещение, площадью 4,96 м2, на 2 этаже 5-этажного бизнес-центра класса B, в 15 мин. пешком от м. Окружная, район города - Отрадное. Номер налоговой объекта - 15, предоставляется юридический адрес. Высота потолков: 3 м. Помещение предоставляется в прямую аренду, срок аренды - любой, с предоплатой за 1 месяц. Включено в ставку: коммунальные платежи, эксплуатационные расходы. Минимальный срок аренды 11 мес. Помещение со стандартной отделкой, комнат в аренду - 1, внутри кабинетная планировка, на полу ковролин. Помещение расположено в Бизнес-центре "Pilot House (Пайлот Хаус)", общая площадь здания 2904 м2, располагается на участке 2203 га, участок находится в аренде, здание полностью функционирует, обслуживает здание управляющая компания ООО "Пилот ЛТД", доступ в здание осуществляется по пропускам, доступ в здание круглосуточный. Вход в помещение - общий с улицы. В здании есть охрана, местное кондиционирование, вентиляция - приточная, центральное отопление, гидрантная система пожаротушения. Парковка автомобилей - наземная.

Дополнительная информация

Тип здания Бизнес-центр Класс БЦ B Этаж 2 Этажность 5 Количество комнат 1 Вход Общий Ремонт С ремонтом
Интернет Есть Кондиционер Есть Вентиляция Есть Пожарная сигнализация Есть Пропускная система Есть Охраняемая парковка Есть
Объекты, находящиеся поблизости
Банки, банкоматы
ПАО "Промсвязьбанк" 501м
Столовые, кафе
Вкусный мир 722м
Медучреждения
М-медик 390м
А5 777м
Динамика изменения цен на рынке недвижимости ?

По району Отрадное, в категории Офисная недвижимость » Офисы
За последние полгода средняя сумма аренды за кв.м. выросла на 328 руб. Колебание цен происходило от 1134 руб. до 1462 руб. На текущий момент наблюдается тенденция к росту цены.
По городу Москва, в категории Офисная недвижимость » Офисы
За последние полгода средняя сумма аренды за кв.м. выросла на 13 руб. Колебание цен происходило от 1940 руб. до 1953 руб. На текущий момент наблюдается тенденция к росту цены.
Похожие объявления
Обновлено
18.05.2026
Фотографии
8
Объявление 735894
Москва, Северо-Восточный АО, Отрадное, Алтуфьевское шоссе, д.13к5
12 000
руб. / мес Аренда
5 м2
Вход в личный кабинет